Будинок на виріст
Що означає "Будинок на виріст"?
Це генеральна концепція будівництва будинку, при якій увесь процес розбивається на незалежні етапи:
Етап 1
Будівництво коробки будинку з простим дахом і обробкою до житлового стану тільки першого поверху.
Мансарда залишається в якості великого горища.
Переваги такого підходу:
- На початковому етапі Ви економите на утепленні даху і обробці другого поверху.
- Це дозволяє наблизити свято новосілля.
- У багатьох наших проектах перші поверхи є повноцінними двокімнатними квартирами, яких вистачає для затишного проживання невеликої сім'ї.
Етап 2 (може проводиться через декілька років після заселення)
Зібравшись з новими силами, Ви утеплюєте горище, обробляєте стіни і стелю і підключаєте опалювання (виводи для підключення батарей і водопроводу оставляються заздалегідь).
І через декілька років Ви отримуєте ще один житловий поверх.

Чомусь в нашій країні вважається, що, якщо вже будувати будинок, то так, щоб площ вистачило на усіх, включаючи далеких і ближніх родичів і друзів. І при цьому мають дуже обмежений бюджет. Досить часто трапляється так, що на продовження і завершення будівництва грошей не вистачає.
І cтоїт, зарослий бур'яном, масивний фундамент. З року в рік стоять запорошені, недобудовані коробки.
Будинок для сім'ї
Уявіть собі молоду сім'ю:
- овона складається з двох, максимум трьох чоловік;
- засобі поки дуже обмежені.
Чи потрібний такій сім'ї величезний будинок?
І чи варто для будівництва такого будинку усім тулитися у бабусиній квартирі і десятиліттями, по вихідних, працювати на обридлому будівництві?

Пропонуємо на початковому етапі обмежиться тільки необхідними приміщеннями. Це:
- санвузол
- спальня
- вітальня поєднана з кухнею
- передпокій
- тамбур. У нашому кліматі він потрібний. Тамбур знижує тепловтрати і не дозволяє морозному повітрю потрапити в передпокій
Бабуся або гості доки приїжджатимуть без ночівлі.
Сучасні газові котли досить компактні, естетичні і чудово розміщуються на кухні або в передпокої.
З кухні-студії можна вийти на ділянку.
Надалі до будинку може бути прибудована дерев'яна тераса.
Як ми вже говорили, замість мансардного поверху велике горище.
Такий підхід скоротить терміни будівництва і, відповідно, вартість.
Хочеться зазначити, і це перевірено на власному досвіді, що ентузіазму для будівництва будинку вистачає рівно на рік.
Потім цей процес перетворюється на нудну роботу, а опісля ще пару-трійку років - в каторжну працю. Це теж варто враховувати при виборі проекту будинку.

Отже
Сім'я радісно зустріла своє новосілля, спокійно облаштувалася, познайомилася з сусідами.
Росте красивий газон, яблуні-груші.
Проходить декілька років. У сім'ї поповнення або підросли діти. Батькам з підлітками в одній кімнаті вже зовсім незатишно.
Що ж робити?
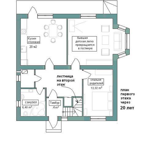
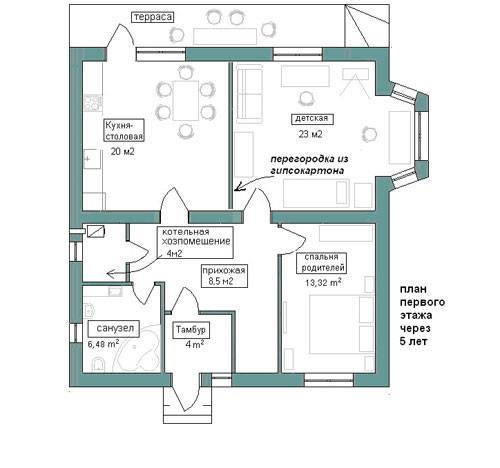
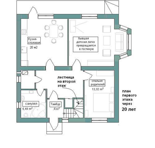
Етап 3
- Відділяємо вітальню від кухні легкою гіпсокартонною перегородкою і отримуємо простору дитячу. У ній комфортно як грати, так і робити уроки. Або може це кімната батьків? Якщо в передпокої відокремити місце, де встановлений котел, то виходить чудова комора-вбиральня.
- З боку саду до будинку прибудовуєте терасу.
І ось можна знову трохи розслабиться і відпочити від будівництва.

Але час невблаганний.
Старша дитина вже має сім'єю.
Як же, з обмеженими ресурсами, вирішити питання, де жити молодятам?
Ось тут до нас на допомогу приходить велике горище!
Згідно проекту, в зручному місці встановлюються сходи на другий поверх.
Якщо ще залишилися питання навіщо ж потрібний проект - детальніше у цій статті—>
Вхід на сходи передбачений з тамбура, життя на першому поверсі не міняється з присутністю ще однієї сім'ї.

- Без переробки покрівлі закладається утеплювач між кроквами.
- Стелю підшиваємо гіпсокартоном.
- Розставляємо перегородки, прокладаємо електропроводку, підключаємо опалювання.
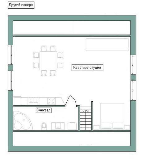
І ось, замість горища у Вас є однокімнатна квартира. При цьому площа квартири - 50-55 м2

Є два варіанти планування другого поверху :
а) Економний. Максимально просте планування. Відділяємо перегородками тільки санвузол. Решта простору - студія.
або...

Етап 4.
б) Повноцінна двокімнатна квартира на другому поверсі.
Це вже зажадає невеликої зміни покрівлі.

Не можемо не погодиться, що реконструкція покрівлі ускладнює життя. Але це виграшне вкладення.
Ви значно збільшуєте житлову площу поверху, і на другому поверсі вже зможуть комфортно розміститься три-чотири людини.
У результаті Ви отримуєте:
- першу спальню - 22 м2
- другу спальню - 13 м2
- кухню-студію - 23 м2
- повноцінний санвузол

Ось таким може бути "дорослий" будинок для великої сім'ї.
Також помітимо, таке будівництво може обійтися дешевше, ніж купівля двокімнатної квартири.
Дивіться проекти будинків цієї концепції в розділі
Проекти будинків - "будинки на виріст"
У статті ми розповіли Вам про можливості будівництва на прикладі проекту "Надія 3" 157 м2.
Подзвони зараз і отримай безкоштовну консультацію сертифікованого архітектора
Читай ще про планування свого будинку
Читай ще статті про те який будинок потрібен
Чому вам вигідно звертатися до нас?

Залиште Ваш комментар