Як побудувати будинок, щоб тебе не обманули будівельники?
Як побудувати будинок і врятуватись від шахраїв
Як побудувати будинок. Та не бути обдуреним?
Знайшли в інтернеті красиву картинку, роздрукували на принтері плани.
Вибрали будівельну бригаду. Виконроб або бригадир, чесно дивлячись вам в очі, упевненим тоном сказав:
«Хазяїн, особисто мені для будівництва проект не потрібний. Навіщо викидати гроші? Мені цілком достатньо твоєї картинки.»
Ніби вірно, навіщо платити за папірці?
Вартість матеріалів, за порадою виконроба, Ви вирішили оплачувати «по факту». Домовилися про ціну за роботу і ударили по руках.
Фундамент
Пройшли 3-4 тижні, фундамент готовий.

Будівельники вимагають сплатити за роботу.
Контрольні питання:
- Як перевірити, чи правильно виконані фундаменти?
- Як перевірити, чи відповідає кількість сплачених Вами матеріалів виконаним роботам?
- Як перевірити, чи відповідають транспортні витрати на доставку матеріалів кількості матеріалів завезених на Вашу ділянку?
- Як дізнатися, чи не побудований на сусідній вулиці з Вашого бетону ще один фундамент?
Відповідь - 1: доведеться Вам повірити будівельникам «на слово» і сплатити роботу.
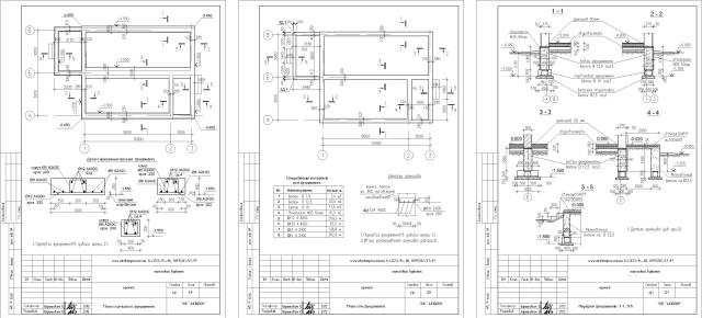
А треба було: дати виконробові креслення, на якому показаний план фундаменту, схеми укладання арматури, перерізу фундаментів, а також, вказане необхідна кількість бетону і арматури.
Креслення фундаментів повинні виглядати так:
І тоді, після виконання робіт Вам би не довелося вірити на слово. Ви повинні були узяти специфікацію матеріалів, аналогічну цій:

і поцікавитися: «А чому вийшла перевитрата матеріалів?». І, якщо виконроб не зміг пояснити, відняти вартість матеріалів із зарплати. (дивися в статті «На чому не можна економити»)
Стіни
Детальний опис матеріалів для будівництва - в статті «З чого побудувати будинок?»
На ділянку пора завозити стінні матеріали: газобетонні або керамічні блоки, цегла. Потрібна арматура. Потрібні перемички над вікнами і дверима.
До речі, видів перемичок дуже багато, усі мають різну міцність і призначення.
Контрольні питання:
- Як порахувати, скільки треба блоків, цеглини, піску і цементу?
- Як визначити, скільки треба арматури і якого діаметру?
- Як визначити, чи не помилився виконроб при виборі залізобетонних перемичок, адже вони повинні витримати вагу залізобетонних плит?
- Як перевірити транспортні витрати на доставку матеріалів?
У зв'язку з тим, що є тільки картинки, перевірити правильність витрати матеріалів неможливо. І знову виникає питання: «А не чи будується з моїх матеріалів чергова дача виконроба?»
Відповідь - 2: і знову доведеться вірити будівельникам «на слово», що все зроблено правильно, матеріали не вкрадені і … сплатити роботу.
А треба було: дати виконробові креслення планів і фасадів, план перемичок і монолітних поясів, перелік і кількість вживаних матеріалів.
План перемичок повинен виглядати так:
А після виконання робіт Ви повинні узяти в руки специфікацію, яка виглядає так:

і звірити специфікацію з касовими чеками або накладними, чи то куплено. А потім, якщо потрібно, поцікавитися: «А куди використали не вказану в специфікації бетон і арматуру?». І відняти перевитрачані засоби із зарплати.
Перекриття


Відповідальний момент! Облаштування перекриттів:
- Треба завозити плити, а якщо перекриття дерев'яне те балки, замовляти кран.
- Плити мають різну довжину і ширину.
- Між плитами будуть ділянки з монолітного залізобетону.
- У перекритті треба залишити отвір для сходів.
Контрольні питання:
- Як дізнатися заздалегідь, які панелі потрібні?
- Як вибрати дешевшого постачальника?
- Скільки треба плит і як їх найраціональніше укласти?
- Як визначити конструкцію монолітних ділянок між плитами, враховуючи що на нього спираються перегородки, меблі і так далі?
Відповідь - 3: доведеться знову понадіятися, що все зроблено правильно, перемички не репнуть, панелі на голову не впадуть, матеріал не вкрадений і … знову платити.
А було треба: узяти креслення перекриттів, які повинні виглядати так:

- знайти на кресленні специфікацію матеріалів:

- дізнатися по телефону, на якому заводі найвигідніше купити панелі, і дати виконробові гроші.
І тоді, після монтажу панелей і бетонування монолітних ділянок, Вам не доведеться нервувати з приводу перевитрачаних засобів.
Покрівля

Здається, закінчення будівництва вже близьке. Пора братися за дах.
Проте слід врахувати, що дошки і бруси для крокв, мауэрлатов, стойок мають різні розміри. Для кожного будинку свої.
Тому лісоматеріали для покрівлі не лежать на складі, їх пиляють під конкретне замовлення.
Тому дошки і бруси треба замовляти заздалегідь. Як мінімум за місяць-півтора до початку покрівельних робіт.
Контрольні питання:
- Скільки і яких розмірів треба пиломатеріалів на вашу покрівлю?
- Як розрахувати, яких розмірів мають бути крокви, мауэрлат, стойки і тому подібне?
- Яка відстань допустима між кроквами?
Відповідь - 4: доведеться Вам знову вірити на слово...
А було треба: узяти креслення покрівлі;

- знайти на кресленні специфікацію матеріалів:

- заздалегідь подзвонити на найближчу лісопилку і продиктувати перелік матеріалів. А виконробові доручити привезти матеріали.
І Ви отримаєте відмінний дах:

Висновки:
- Результат будівництва, грунтованого виключно на довірі, непередбачуваний.
- Найчастіше він незадовільний.
- У кращому разі це вкрадені матеріали, в гіршому - будинок, що розсипається.
- Щоб уникнути помилок і обману, досить скористатися проектом.
- Як сказано раніше, окрім «картинок» у проекті є креслення конструкцій і перелік матеріалів. Маючи в руках перелік матеріалів ви зможете заздалегідь визначити вартість матеріалів і перевірити, що і в якій кількості витрачене робітниками на будівництво вашого будинку.
Як виглядають проект в повному об'ємі, Ви можете побачити тут - «Склад Проекту»
Приступаючи до будівництва, не варто забувати народне прислів'я: «Жадібний платить двічі, а поганий - тричі».
Наші проекти будинків дивись тут
Чому вам вигідно звертатися до нас?

Залиште Ваш комментар