Вартість будівництва по проекту Ромашка 62 м2

Розрахунок вартості будівництва "коробки" будинку з СІП панелей за проектом "Ромашка СІП".
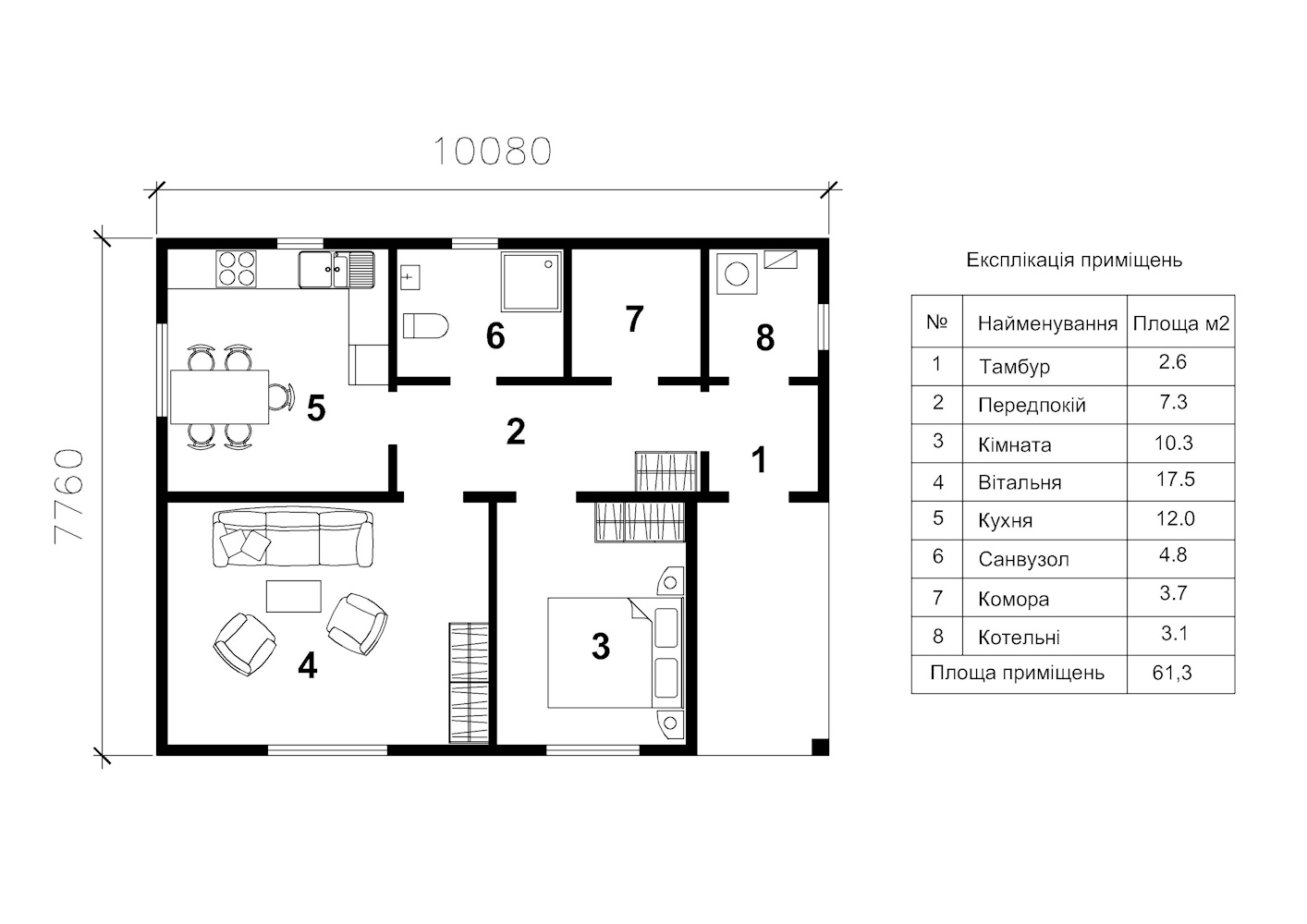
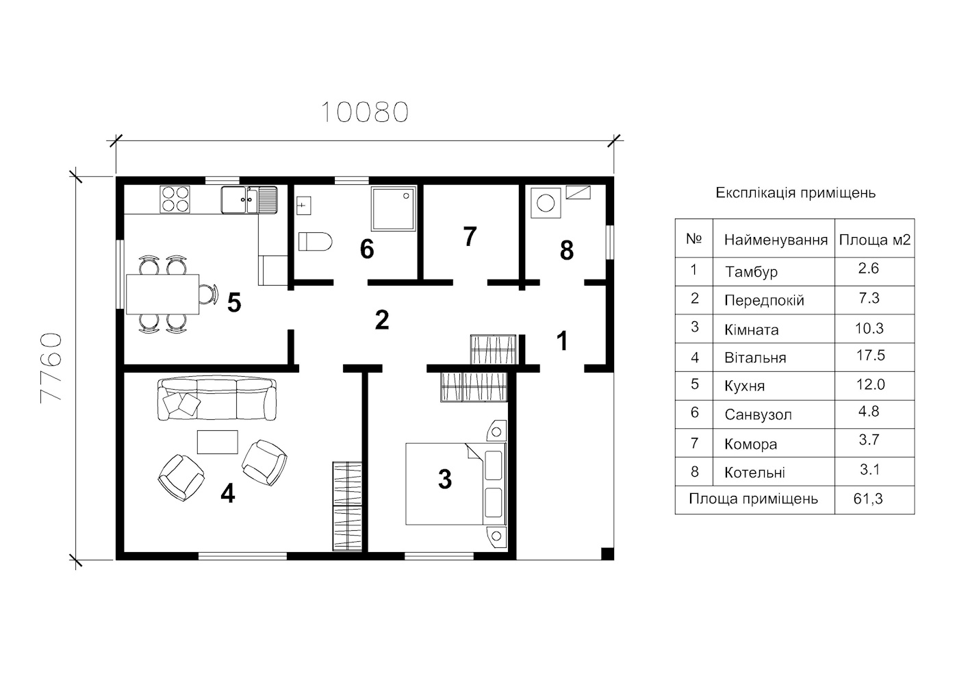
Площа приміщень - 61 м2.

Загальна вартість робіт та матеріалів 802 тис.грн. (20.25 тис. Євро)
Вартість розрахована на 01.12.2023 р.
Склад коробки: фундамент свайний залізобетонний, підлога по утепленій бетонній основі, стіни — СІП панелі 160 мм, перекриття утеплене мінватою 200 мм, покрівля — металочерепиця.
Вартість будівництва підлягає уточненню виходячі з рельєфу майданчика, міцності грунтів, рівня грунтових вод, транспортних витрат на доставку матеріалів, та цін які склалися на момент розрахунку.
Пишіть або телефонуйте та отримайте додаткову інформацію зараз:
ОЛЕКСІЙ БІРЮКОВИЧ
Cертифікований архітектор
Чому вам вигідно звертатися до нас?
Продаємо готові проекти котеджів власного виробництва
Виконуємо індивідуальне проектування
Виконуємо проектування реконструкції будинків
Проектуємо будинки на існуючих фундаментах
Виконуємо дизайн проекти інтер'єрів
Коригуємо імпортні проекти з урахуванням вітчизняних матеріалів
Консультуємо з питань будівництва та ремонту

Залиште Ваш комментар