Каркасні будинки
Склад проекту каркасного будинку
Загальний вигляд креслень проекту.
Нижче на прикладі декількох проектів показано як виглядають робочі креслення проекту каркасного будинку.
1. Титульний аркуш з мокрою печаткою архітектора та перелік креслень з яких складається проект.

2. Пояснювальна записка.

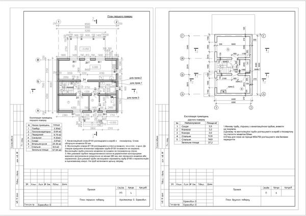
3. План першого та другого поверхів. Плани взяті з різних проектів.

4. Розрізи будинку

5. Фасади будинку. Фасади також з різних проектів

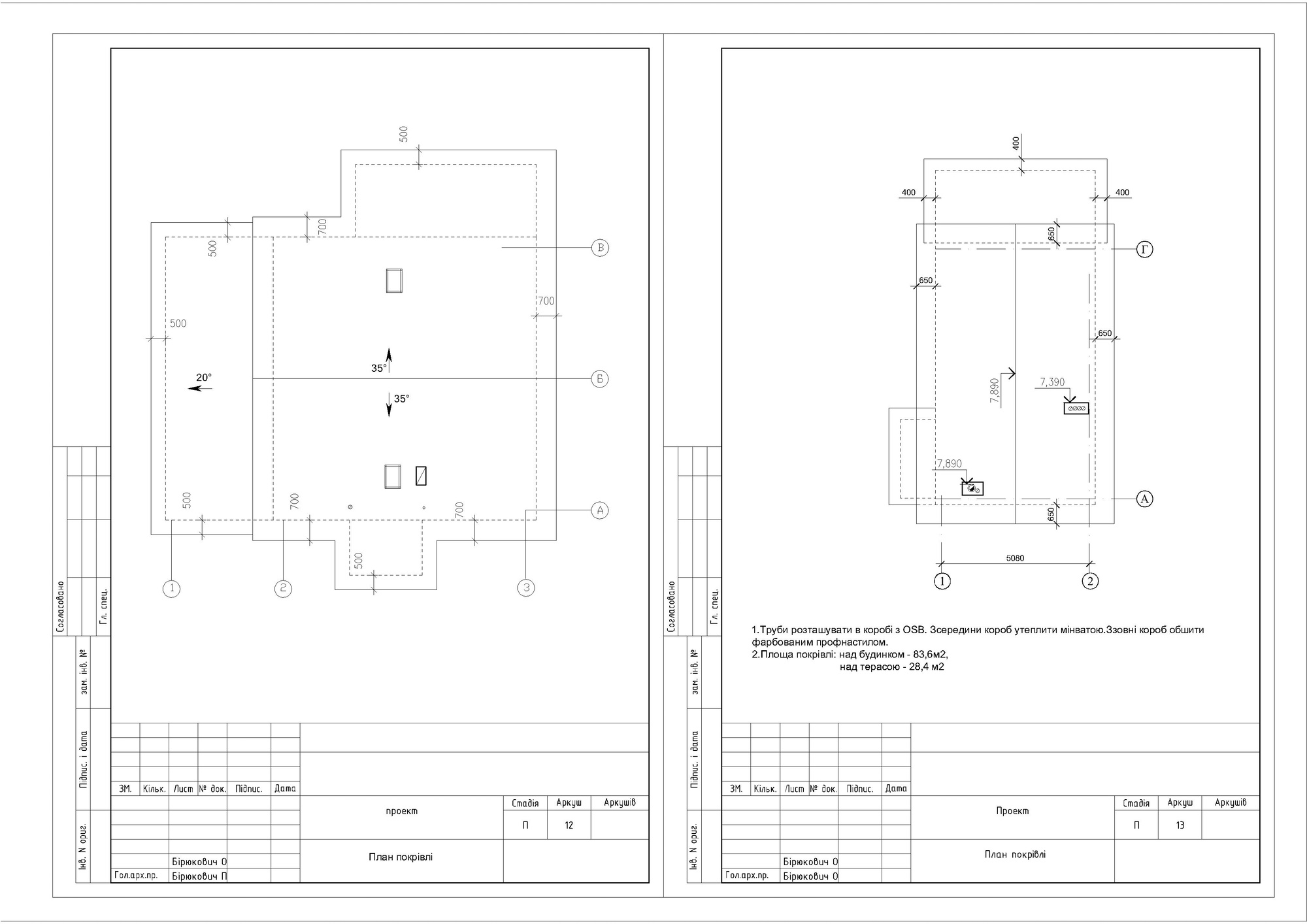
6. План покрівлі з позначками висот, ухилами та розташуванням димових та вентиляційних труб.
Нижче наведені приклади креслень конструктивної частини.
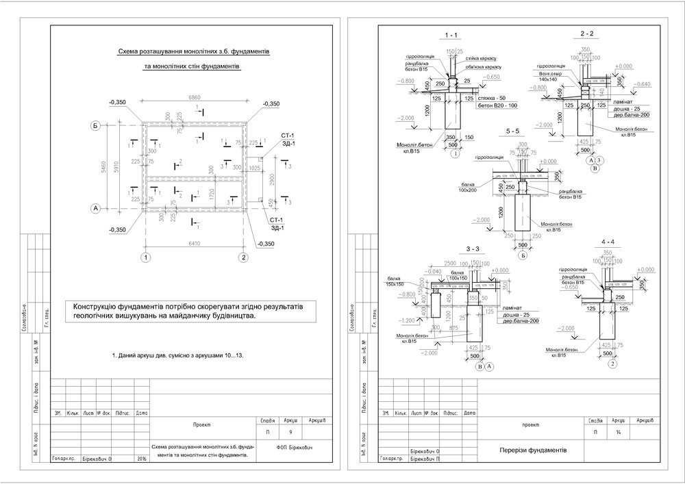
7. Так виглядають креслення для варіанта стрічкових фундаментів.

8. В разі застосування варінта стовпчастих фундаментів креслення фундаментів можуть виглядати так
9. До креслень фундаментів додається специфікація матеріалів яка складається з кількості бетону, арматури та вказівок по виконанню робіт.

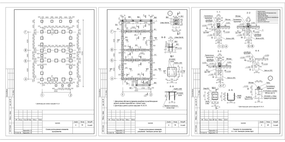
10. Плани стійок деревяного каркасу першого та другого поверхів. Для прикладу плани взяті з різних проектів.

11. Розгортки каркасів по кожній стіні та специфікація матеріалів на каркаси.

12. Плани перекриття першого та другого поверхів та специфікації матеріалів.

13. Схема розташування крокв над будинком.
14. Розрізи покрівлі з показом крокв.
15. Вузли та деталі покрвлі та специфікація матеріалів на покрівлю в якій вказани розміри та довжини елементів покрівлі та їх кількість.
Обсяг проекту достатній для будівництва, розрахунку вартості матеріалів, придбанню матеріалів та складання кошторису.
Телефонуйте або пишіть та задавайте питання.
Чому вам вигідно звертатися до нас?

Залиште Ваш комментар