Проект реконструкції тераси в с. Хотянівка
Проект реконструкції розроблений у червні 2025р.

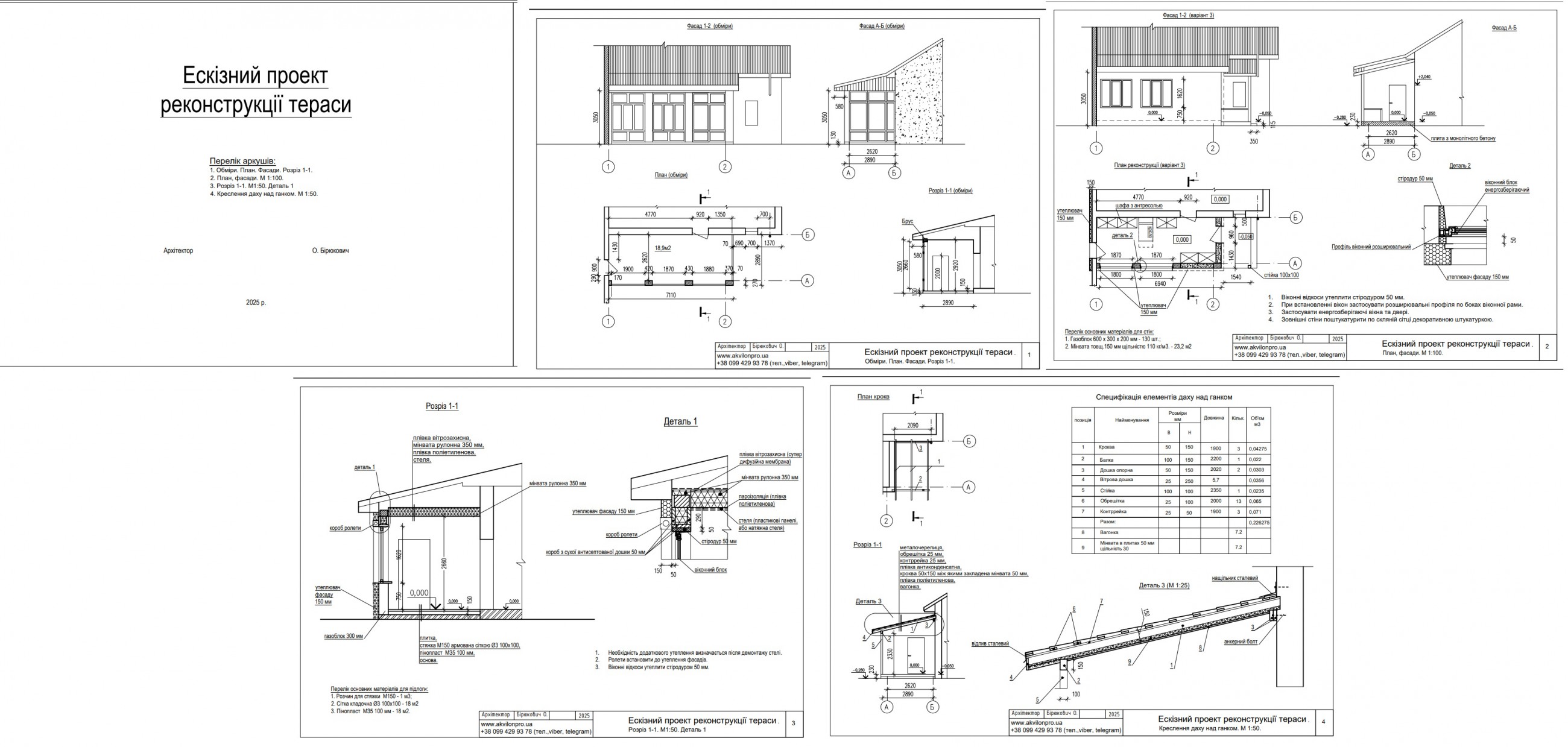
Існуюча тераса була закрита металопластиковими конструкціями, підлога була холодна без
утеплення. Приміщення не опалювалась.
Планувалося включити холодну терасу в склад теплих приміщень будинку.
Було завдання - розробити проект реконструкції з максимальним збереженням існуючих
конструкцій та досягти мінімальних витрат тепла. Перед входом до будинку запроектувати
ганок який планується використати як невеличку терасу.

Запроектовано:
- Стіни будинку виконати з газоблоків товщиною 300 мм які облицювати плитами мінвати
150 мм та поштукатурити. - Підлогу утеплити пінопластом М 35 товщ.100 мм, накрити армованою стяжкою та
облицювати плиткою. - Стелю утеплити мінватою товщиною 350 мм.
- В якості вікон застосувати енергоощадні металопластикові вікна.

ОЛЕКСІЙ БІРЮКОВИЧ
Cертифікований архітектор
Чому вам вигідно звертатися до нас?
Продаємо готові проекти котеджів власного виробництва
Виконуємо індивідуальне проектування
Виконуємо проектування реконструкції будинків
Проектуємо будинки на існуючих фундаментах
Виконуємо дизайн проекти інтер'єрів
Коригуємо імпортні проекти з урахуванням вітчизняних матеріалів
Консультуємо з питань будівництва та ремонту

Залиште Ваш комментар