Проект будинку на існуючих фундаментах
Проект реконструкції будинку з гаражем на готовому фундаменті
У 2019 р під Києвом була придбана ділянка для будівництва будинку на якому попереднім господарем вже був споруджений фундамент. Замовником було прийнято рішення побудувати будинок на існуючому фундаменті.

Під частиною фундаменту був підвал перекритий железобетонниі панелями.
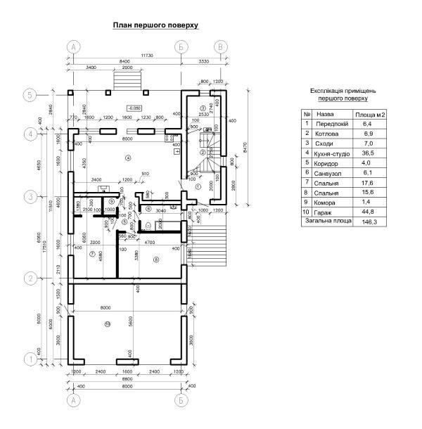
Виходячи з обрисів фундаменту нами був розроблений робочий проект одноповерхового трикімнатного будинку з гаражем на два автомобіля.

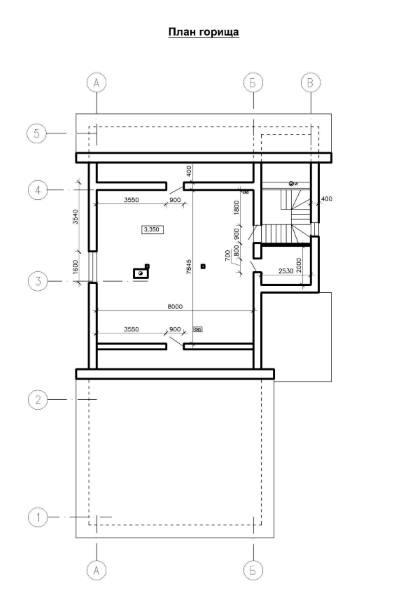
Проектом передбачено просторий горище, який можна використовув для зберігання речей, а при необхідності, можна перетворити в мансарду. На горище-мансарду з передпокою веде повноцінна сходи.

Загальний вигляд будинку з боку дороги.

Так виглядає будинок з боку двору. З кухні-їдальні передбачений вихід на терасу.

Фасади.

Склад робочого проекту.

Загальний вигляд креслень готового робочого проекту.

Архітектор Олексій Бірюкович. 06.09.2019
Дивись проект реконструкції будинку 60х років
Дивись всі проекти реконструкції будинків
Чому вам вигідно звертатися до нас?

Залиште Ваш комментар