''Пуховка'' (69м²)
Каркасний мансардний двокімнатний будинок проект:
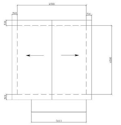
- Загальна площа:69 м²
- Габарити будинку:6.5 м х 6.5 м
КОНСТРУКЦІЇ:
- Фундаменти:Стовпчасті
- Зовнішні стіни:Дерев'яний каркас 350 мм
- Перекриття:Дерев'яні балки, Дерев'яні балки
- Покрівля:Скатна
- Покрівельне покриття:Шифер
Ціна проекту:
14000 грн.
| Параметр | Дані |
|---|---|
| Несуча здатність грунту | 1.5 кг/см2 |
| Фундаменти | Стовпчасті |
| Стіни | Дерев'яний каркас 350 мм |
| Покрівельні покриття | Шифер |
| Кількість поверхів | 2 |
| Пол першого поверху | Дерев'яні балки |
| Висота першого поверху | 2.5 м |
| Висота стіни мансарди | 2.5 м |
| Перекриття першого поверху | Дерев'яні балки |
Проект мансардного двокімнатного будинку 69 м2 з еркером



Залиште Ваш комментар