Корольок 5 (65м²)
Проект сучасного двокімнатного будинку :
- Загальна площа:65 м²
- Габарити будинку:9.14 м х 9.14 м
КОНСТРУКЦІЇ:
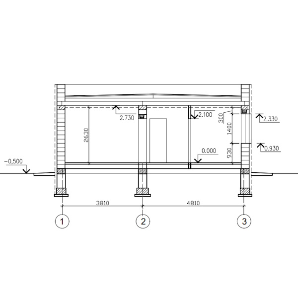
- Фундаменти:Стрічкові монолітні залізобетонні
- Зовнішні стіни:Газобетонний блок 375 мм
- Перекриття:Дерев'яні балки, Нема
- Покрівля:Плоска
- Покрівельне покриття:наплавлювана полімерно-бітумна мембрана Сполімод
Ціна проекту:
14000 грн.
| Параметр | Дані |
|---|---|
| Несуча здатність грунту | |
| Фундаменти | Стрічкові монолітні залізобетонні |
| Стіни | Газобетонний блок 375 мм |
| Покрівельні покриття | наплавлювана полімерно-бітумна мембрана Сполімод |
| Кількість поверхів | 1 |
| Пол першого поверху | По грунту |
| Висота першого поверху | 2.63 м |
| Перекриття першого поверху | Дерев'яні балки |



Залиште Ваш комментар