Ставище 3 (94м²)
Одноповерховий будинок з підвалом на схилі. Дві спальні, кухня об'єднана з вітальнею:
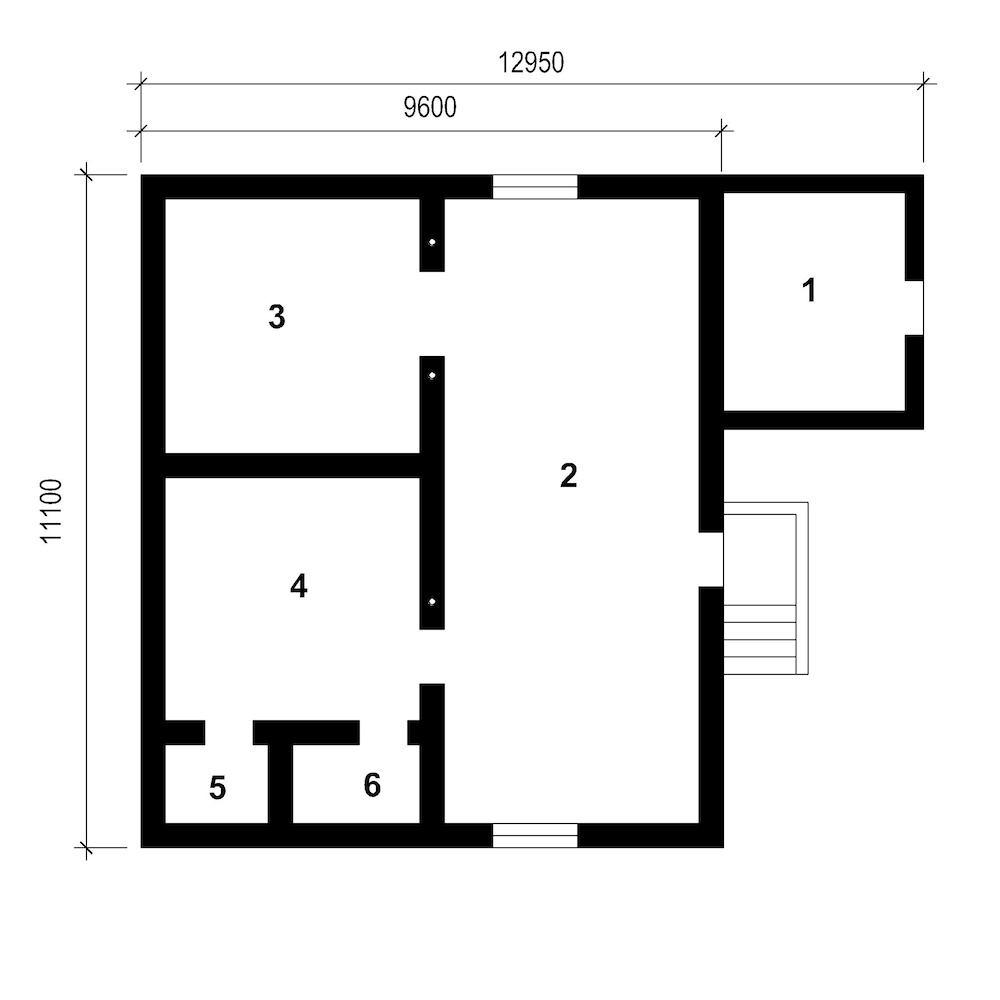
- Загальна площа:94 м²
- Площа підвалу:93.2 м²
- Габарити будинку:11.1 м х 12.95 м
КОНСТРУКЦІЇ:
- Фундаменти:Блоки чи монолітний бетон
- Зовнішні стіни:Газобетонний блок 400 мм
- Перекриття:Дерев'яні балки, Нема
- Покрівля:Скатна
- Покрівельне покриття:Металочерепиця
Ціна проекту:
14000 грн.
| Параметр | Дані |
|---|---|
| Несуча здатність грунту | |
| Фундаменти | Блоки чи монолітний бетон |
| Стіни | Газобетонний блок 400 мм |
| Покрівельні покриття | Металочерепиця |
| Кількість поверхів | 1 |
| Пол першого поверху | По грунту |
| Висота першого поверху | 2.8 м |
| Перекриття першого поверху | Дерев'яні балки |



Залиште Ваш комментар