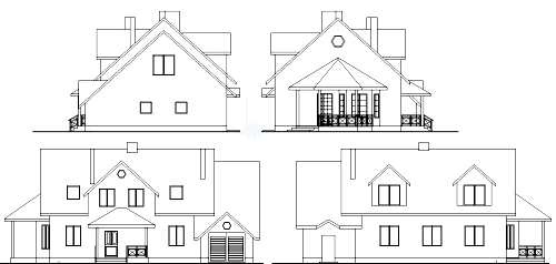
''Черешня'' (261.3м²)
Мансардний котедж з каміном та гаражем:
- Загальна площа:261.3 м²
- Загальна площа без гаражу та підвалу:206.0 м²
- Площа гаража:20.7 м²
- Габарити будинку:11.1 м х 15.9 м
КОНСТРУКЦІЇ:
- Фундаменти:Стрічкові монолітні залізобетонні
- Зовнішні стіни:Газобетонний блок 375 мм
- Перекриття:Залізобетонні панелі, Нема
- Покрівля:Скатна
- Покрівельне покриття:Бітумна черепиця
Ціна проекту:
14900 грн.
| Параметр | Дані |
|---|---|
| Несуча здатність грунту | 1,5 кг/см2 |
| Фундаменти | Стрічкові монолітні залізобетонні |
| Стіни | Газобетонний блок 375 мм |
| Покрівельні покриття | Бітумна черепиця |
| Кількість поверхів | 2 |
| Пол першого поверху | По грунту |
| Висота першого поверху | 2.8 м |
| Висота стіни мансарди | 2.8 м |
| Перекриття першого поверху | Залізобетонні панелі |
Популярний проект будинку з мансардою та гаражем

В даному проекті Ви легко можете самостійно змінити матеріали стін на газобетонний блок або цеглу з утепленням.
Вам може знадобитись маленький проект будинку з мансардою - Гіацинт 66 м2
- Можливе корегування проекту по Вашим побажанням. Вартість визначається індивідуально.



Залиште Ваш комментар