6 соток (277м²)
Двоквартирний будинок з чотирма спальнями:
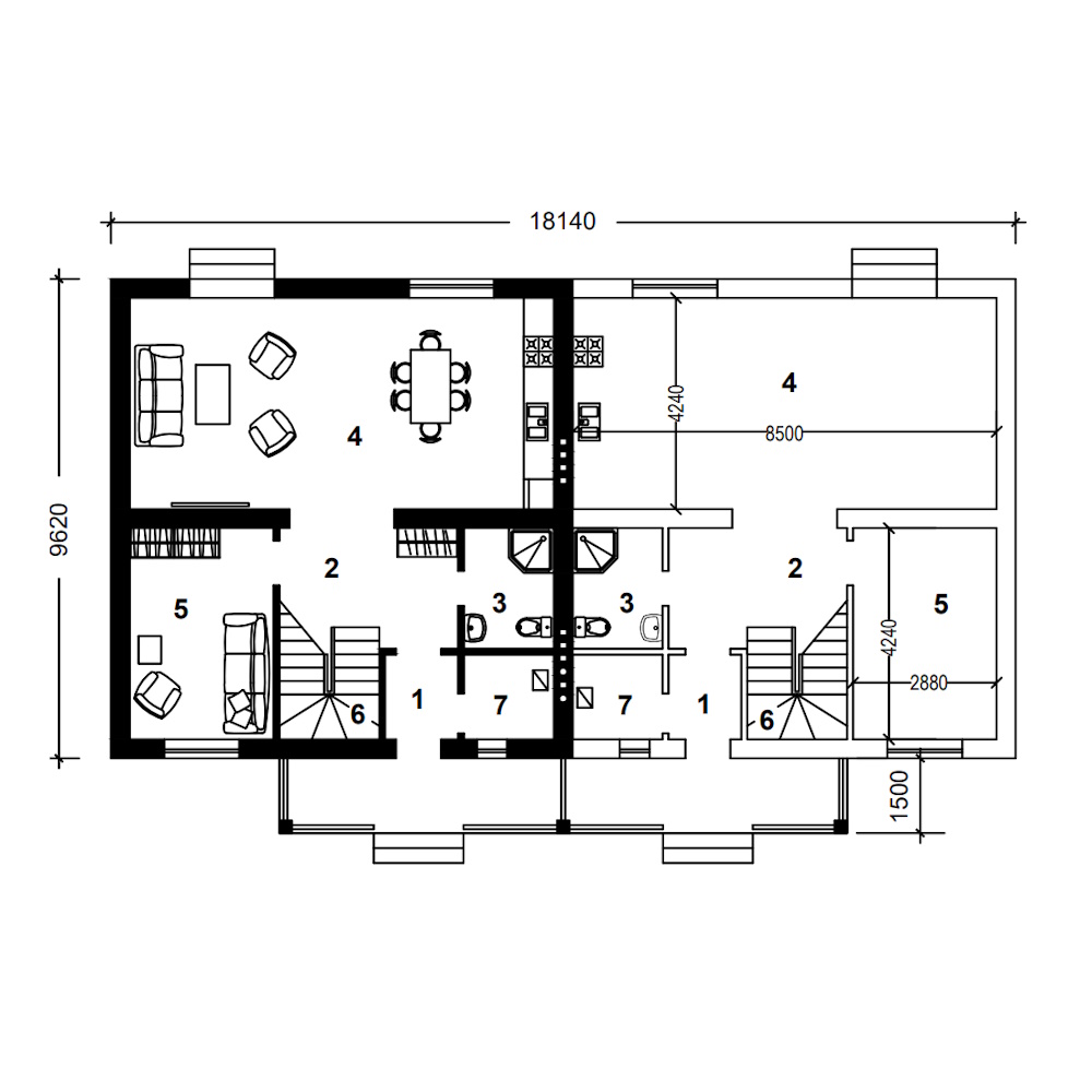
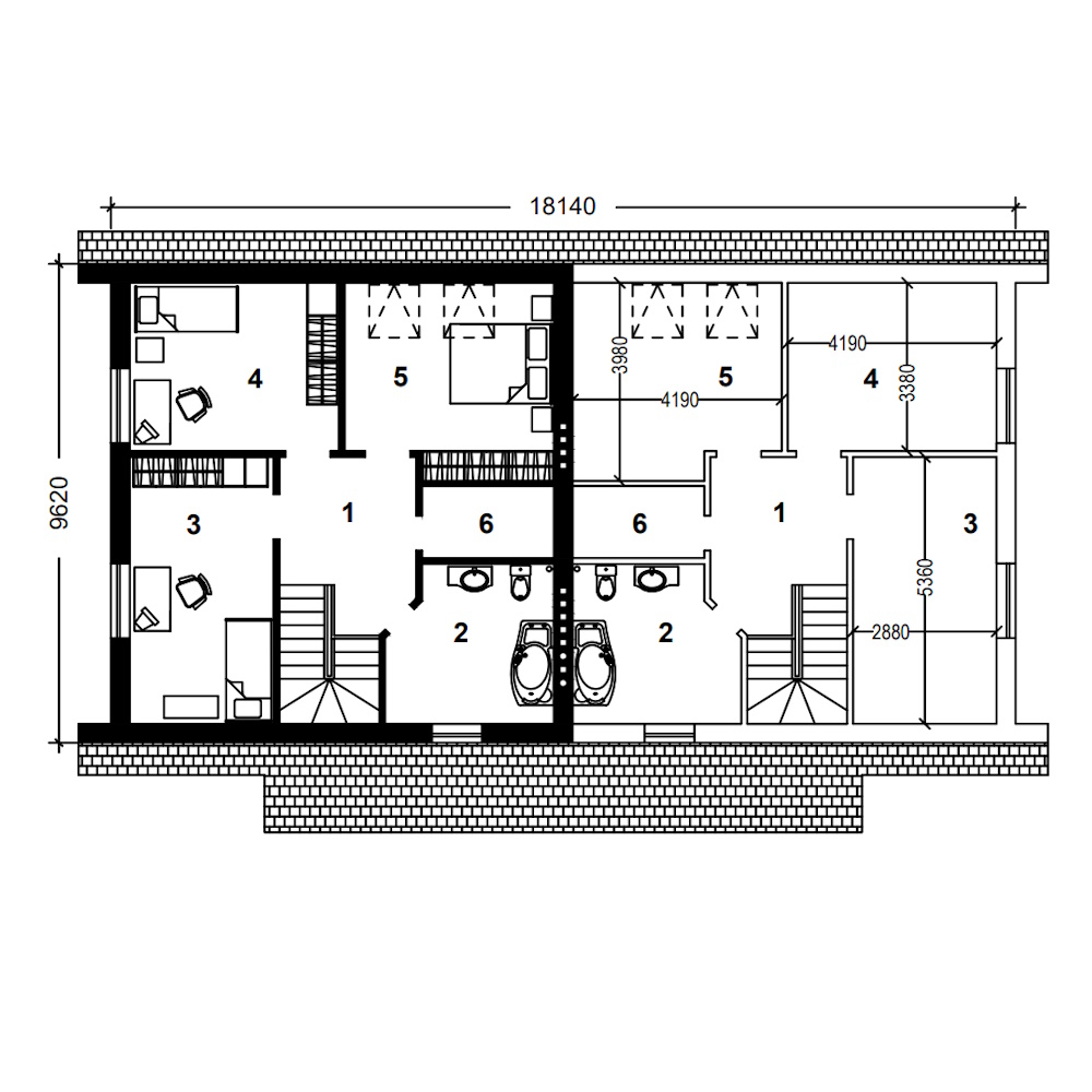
- Загальна площа:277 м²
- Габарити будинку:9.6 м х 18.14 м
КОНСТРУКЦІЇ:
- Фундаменти:Стрічкові монолітні залізобетонні
- Зовнішні стіни:Газобетонний блок 375 мм
- Перекриття:Залізобетонні панелі, Дерев'яні балки
- Покрівля:Скатна
- Покрівельне покриття:Металочерепиця
Ціна проекту:
14900 грн.
| Параметр | Дані |
|---|---|
| Несуча здатність грунту | |
| Фундаменти | Стрічкові монолітні залізобетонні |
| Стіни | Газобетонний блок 375 мм |
| Покрівельні покриття | Металочерепиця |
| Кількість поверхів | 2 |
| Пол першого поверху | По грунту |
| Висота першого поверху | 2.6 м |
| Висота стіни мансарди | 2.4 м |
| Перекриття першого поверху | Залізобетонні панелі |



Залиште Ваш комментар