''Ілона'' (182м²)
Мансардний будинок з еркером та балконом:
- Загальна площа:182 м²
- Габарити будинку:12.6 м х 12.2 м
КОНСТРУКЦІЇ:
- Фундаменти:Стрічкові збірні залізобетонні
- Зовнішні стіни:Газобетонний блок 400 мм
- Перекриття:Залізобетонні панелі, Нема
- Покрівля:Скатна
- Покрівельне покриття:Бітумна черепиця
Ціна проекту:
13200 грн.
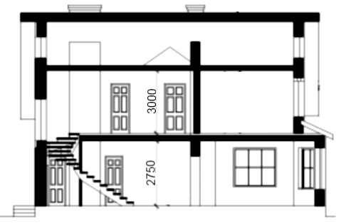
| Параметр | Дані |
|---|---|
| Несуча здатність грунту | 1,5 кг/см2 |
| Фундаменти | Стрічкові збірні залізобетонні |
| Стіни | Газобетонний блок 400 мм |
| Покрівельні покриття | Бітумна черепиця |
| Кількість поверхів | 2 |
| Пол першого поверху | По грунту |
| Висота першого поверху | 2.75 м |
| Висота стіни мансарди | 3 м |
| Перекриття першого поверху | Залізобетонні панелі |
Проекти двоповерхових будинків з сауною.
Гарний будинок з великою вітальнею з відокремленною кохонною зоною з кладовою, котлова з окремим входом, п'ять кімнат та сауна.
В даному проекті Ви легко можете самостійно змінити матеріали стін на газобетонний блок або цеглу з утепленням.
Дивись ще проект будинку з мансардою та сауною - Ілона 2 - 182 м2
- Можливе корегування проекту по Вашим побажанням. Вартість визначається індивідуально.
Дивись інші проекти будинків з сауною


Залиште Ваш комментар