Маша 17 (132м²)
Двоповерховий будинок з п'ятьма спальнями та підвалом:
- Загальна площа:132 м²
- Загальна площа без гаражу та підвалу:132 м²
- Площа підвалу:67.0 м²
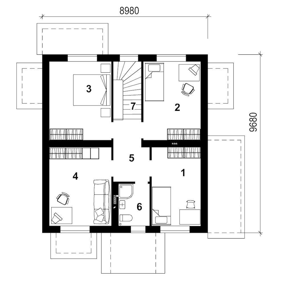
- Габарити будинку:8.9 м х 9.7 м
КОНСТРУКЦІЇ:
- Фундаменти:Стрічкові монолітні залізобетонні
- Зовнішні стіни:Газобетонний блок 375 мм
- Перекриття:Залізобетонні панелі, Залізобетонні панелі
- Покрівля:Плоска
- Покрівельне покриття:наплавлювана полімерно-бітумна мембрана Сполімод
Ціна проекту:
18000 грн.
| Параметр | Дані |
|---|---|
| Несуча здатність грунту | |
| Фундаменти | Стрічкові монолітні залізобетонні |
| Стіни | Газобетонний блок 375 мм |
| Покрівельні покриття | наплавлювана полімерно-бітумна мембрана Сполімод |
| Кількість поверхів | 2 |
| Конфігурація другого поверху | повний |
| Пол першого поверху | По грунту |
| Висота першого поверху | 2.75 м |
| Висота другого поверху | 2.77 м |
| Перекриття першого поверху | Залізобетонні панелі |
| Перекриття другого поверху | Залізобетонні панелі |
Треба відмітити, що при порівнянні з скатної покрівлі з горищем, та плоскої, плоска покрівля значно дешевше.
Приклад проекту будинку площею 136 м2 з підвалом, в якому другий поверх мансардний — Паша 7
Проект Маша 16 - аналогічний будинок з скатною покрівлею та горищем
Більше проектів двоповерхових будинків тут
Проекти будинків з підвалом тут
#проектидвоповерховихбудинків #готовіпроектибудинків #проектидвоповерховихбудинківкиїв #проектибудинківзпідвалом



Залиште Ваш комментар