''Мімоза'' (103м²)
Компактний двоквартирний будинок з плоским дахом:
- Загальна площа:103 м²
- Габарити будинку:9.6 м х 10.5 м
КОНСТРУКЦІЇ:
- Фундаменти:Стовпчасті
- Зовнішні стіни:Газобетонний блок 375 мм
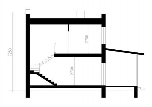
- Перекриття:Залізобетонні панелі, Залізобетонні панелі
- Покрівля:Плоска
- Покрівельне покриття:наплавлювана полімерно-бітумна мембрана Сполімод
Ціна проекту:
15000 грн.
| Параметр | Дані |
|---|---|
| Несуча здатність грунту | 1.5 кг/см2 |
| Фундаменти | Стовпчасті |
| Стіни | Газобетонний блок 375 мм |
| Покрівельні покриття | наплавлювана полімерно-бітумна мембрана Сполімод |
| Кількість поверхів | 2 |
| Конфігурація другого поверху | повний |
| Пол першого поверху | По грунту |
| Висота першого поверху | 2.7 м |
| Висота другого поверху | 2.7 м |
| Перекриття першого поверху | Залізобетонні панелі |
| Перекриття другого поверху | Залізобетонні панелі |
Проект компактного двоквартирного будинку з плоским дахом і верандою
В даному проекті Ви легко можете змінити матеріали стін на керамічний блок або цеглу з утепленням.
- Можливе корегування проекту по Вашим побажанням. Вартість визначається індивідуально.
Дивись ще проект будинку з плоским дахом Мімоза 2
Дивись інші готові проекти будинків з односхилим дахом



Залиште Ваш комментар