''Чадо 3'' (140м²)
Мансардний будинок з гаражем та терасою:
- Загальна площа:140 м²
- Загальна площа без гаражу та підвалу:113.8 м²
- Площа гаража:26 м²
- Габарити будинку:16.1 м х 8.3 м
КОНСТРУКЦІЇ:
- Фундаменти:Стрічкові збірні залізобетонні
- Зовнішні стіни:Газобетонний блок 400 мм
- Перекриття:Залізобетонні панелі, Нема
- Покрівля:Скатна
- Покрівельне покриття:Бітумна черепиця
Ціна проекту:
14000 грн.
| Параметр | Дані |
|---|---|
| Несуча здатність грунту | 2 кг/см2 |
| Фундаменти | Стрічкові збірні залізобетонні |
| Стіни | Газобетонний блок 400 мм |
| Покрівельні покриття | Бітумна черепиця |
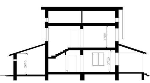
| Кількість поверхів | 2 |
| Пол першого поверху | По грунту |
| Висота першого поверху | 2.7 м |
| Висота стіни мансарди | 2.7 м |
| Перекриття першого поверху | Залізобетонні панелі |
Проект мансардного чотирикімнатного котеджу з гаражем та терасою
Матеріали стін в даному проекті можна легко поміняти на керамічний блоки або газобетон.
- Можливе корегування проекту по Вашим побажанням. Вартість визначається індивідуально.




Залиште Ваш комментар