Вова 4 (112м²)
Проект раціонального будинку 112 м2 з трьома спальнями:
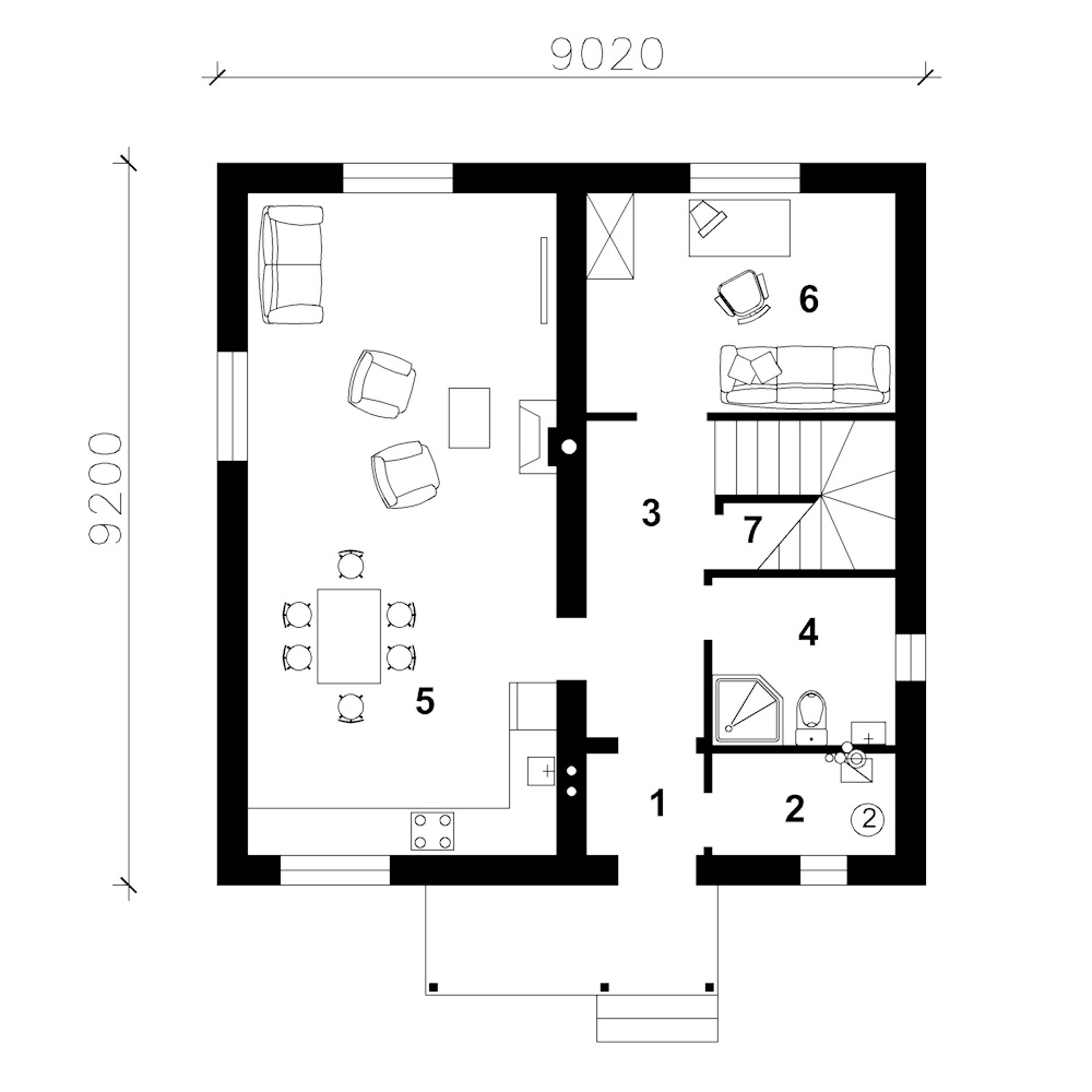
- Загальна площа:112 м²
- Габарити будинку:9.02 м х 9.2 м
КОНСТРУКЦІЇ:
- Фундаменти:Стрічкові монолітні залізобетонні
- Зовнішні стіни:Газобетонний блок 375 мм
- Перекриття:Дерев'яні балки, Нема
- Покрівля:Скатна
- Покрівельне покриття:Металочерепиця
Ціна проекту:
14000 грн.
| Параметр | Дані |
|---|---|
| Несуча здатність грунту | |
| Фундаменти | Стрічкові монолітні залізобетонні |
| Стіни | Газобетонний блок 375 мм |
| Покрівельні покриття | Металочерепиця |
| Кількість поверхів | 2 |
| Пол першого поверху | По грунту |
| Висота першого поверху | 2.7 м |
| Висота стіни мансарди | 2.5 м |
| Перекриття першого поверху | Дерев'яні балки |



Залиште Ваш комментар