Іва 2 (120м²)
- Загальна площа:120 м²
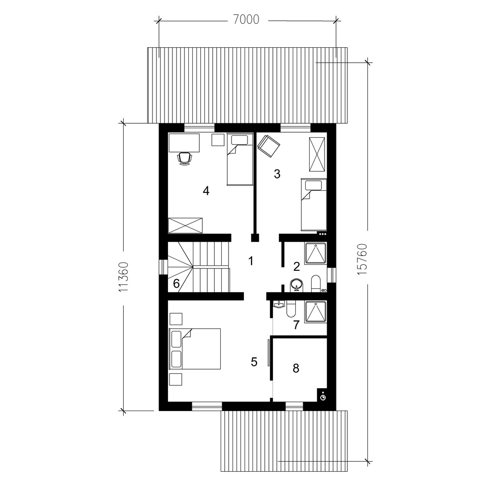
- Габарити будинку:7 м х 15.76 м
- Фундаменти:Стовпчасті
- Зовнішні стіни:Дерев'яний каркас 350 мм
- Перекриття:Дерев'яні балки, Дерев'яні балки
- Покрівля:Скатна
- Покрівельне покриття:Бітумна черепиця
| Параметр | Дані |
|---|---|
| Несуча здатність грунту | |
| Фундаменти | Стовпчасті |
| Стіни | Дерев'яний каркас 350 мм |
| Покрівельні покриття | Бітумна черепиця |
| Кількість поверхів | 2 |
| Конфігурація другого поверху | повний |
| Пол першого поверху | По грунту |
| Висота першого поверху | 2.75 м |
| Висота другого поверху | 2.75 м |
| Перекриття першого поверху | Дерев'яні балки |
| Перекриття другого поверху | Дерев'яні балки |
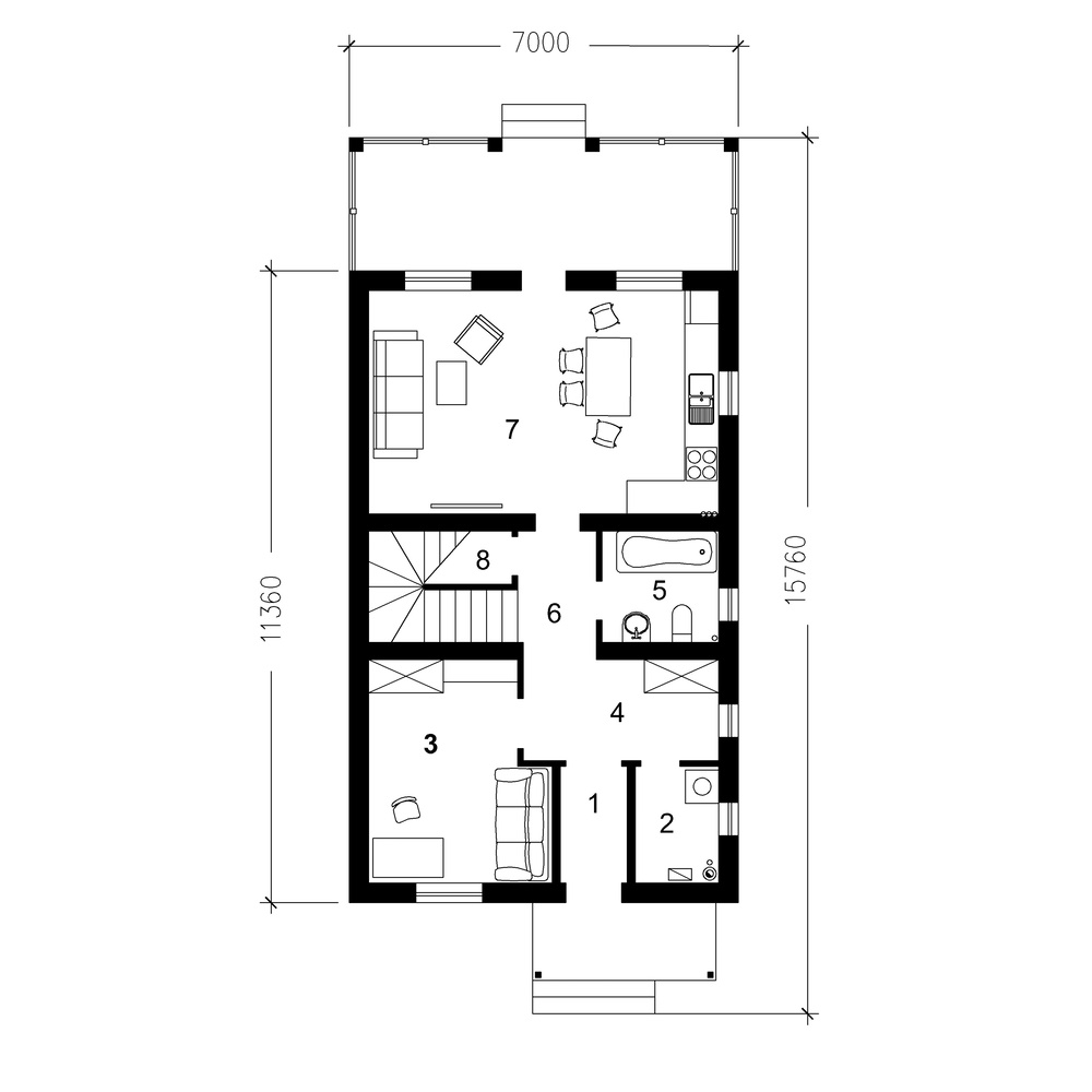
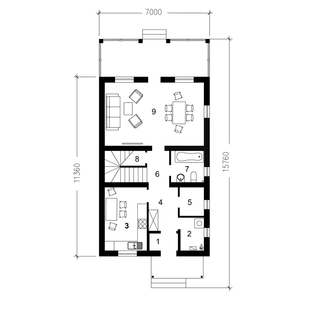
Проект каркасного будинку для вузької ділянки з чотирма спальнями та терасою.
"Іва 2" це проект дерев'яного каркасного будинку для вузької ділянки. Ширина будинку 7 м. Конструкції зовнішніх стін — дерев’яний каркас. Каркасний будинок самий легкий, теплий і дешевий. Каркасні стіни тепліше газобетонних в два з половиною рази і при цьому в десять разів легше. Крім того, вони значно дешевше. Фундаменти - полегшені.
Вартість фундаментів каркасного будинку на 40-50% менше ніж газоблочного.
Висока швидкість будівництва каркасного будинку. Транспортні витрати на доставку матеріалів не високі, так як завозити матеріали можна "Газеллю". Будівництво каркасного будинку можна вести взимку.
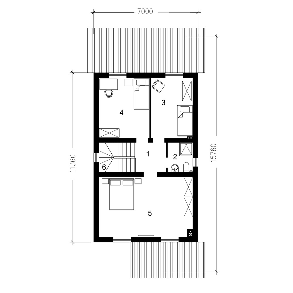
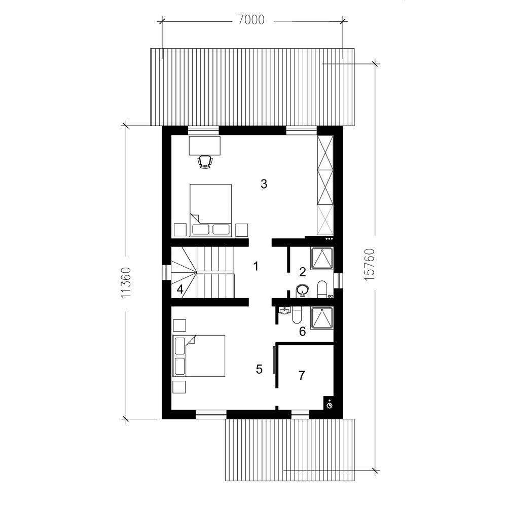
Будинок двоповерховий. На першому поверсі розташовані кабінет, котельня, санвузол та кухня — вітальня. З кухні передбачений вихід на терасу. На другому поверсі запроектовано три спальні та санвузол.
Опалення за допомогою газового котла або електроприладів.
Як виглядають креслення каркасних будинків дивись тут
Детально про будівництво каркасних будинків дивись тут



Залиште Ваш комментар