Проект каналізації одноповерхового будинку з підвалом
Загальні дані

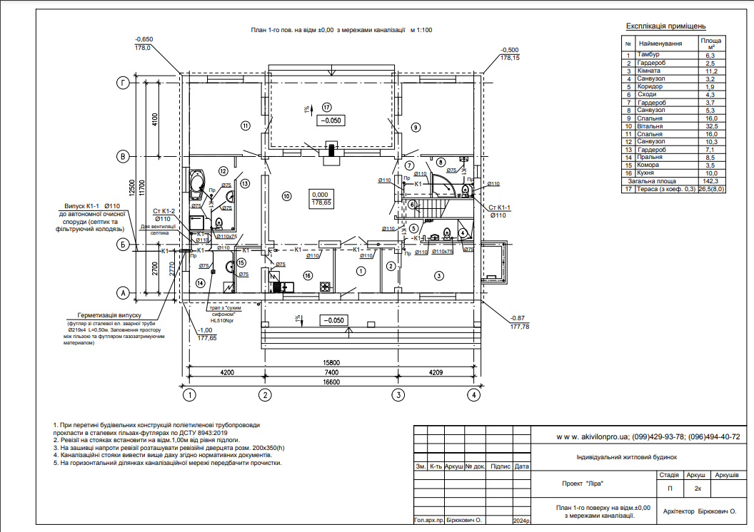
План першого поверху

План підвалу аксонометрична схема каналізації

Схема зовнішньої каналізації

План підвалу завдання на отвори

ОЛЕКСІЙ БІРЮКОВИЧ
Cертифікований архітектор
Чому вам вигідно звертатися до нас?
Продаємо готові проекти котеджів власного виробництва
Виконуємо індивідуальне проектування
Виконуємо проектування реконструкції будинків
Проектуємо будинки на існуючих фундаментах
Виконуємо дизайн проекти інтер'єрів
Коригуємо імпортні проекти з урахуванням вітчизняних матеріалів
Консультуємо з питань будівництва та ремонту

Залиште Ваш комментар