Ескізний проект каналізації двоповерхового будинку
Загальні дані

План першого поверху з прокладкой каналізаційних труб

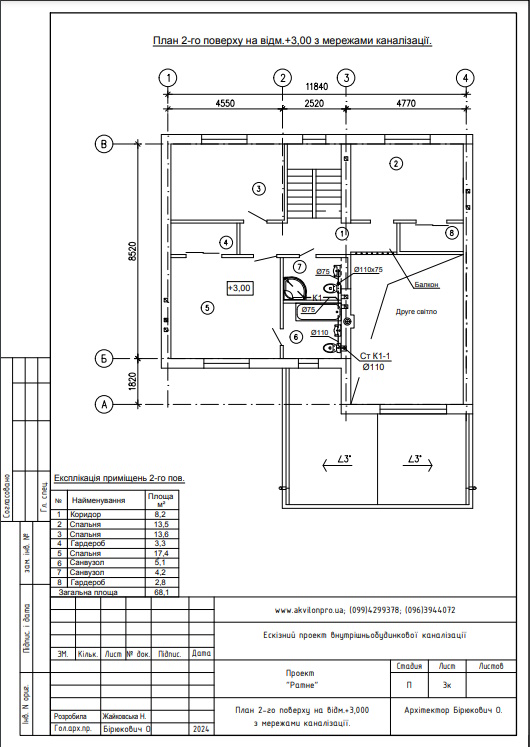
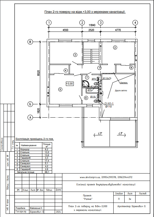
План другого поверху з прокладкой каналізаційних труб

Ааксонометрична схема каналізації з показом ухилів та відміток отворів

Схема зовнішньої каналізації

Завдання на отвори в стінах та фундаменті для конструктора

ОЛЕКСІЙ БІРЮКОВИЧ
Cертифікований архітектор
Чому вам вигідно звертатися до нас?
Продаємо готові проекти котеджів власного виробництва
Виконуємо індивідуальне проектування
Виконуємо проектування реконструкції будинків
Проектуємо будинки на існуючих фундаментах
Виконуємо дизайн проекти інтер'єрів
Коригуємо імпортні проекти з урахуванням вітчизняних матеріалів
Консультуємо з питань будівництва та ремонту

Залиште Ваш комментар