Приклад проекту водопостачання - каналізація
Проект водопроводу-каналізації приклад
Титульний лист проекту:


На цьому листі зазначаються загальні вхідні дані дані проекту систем водпровод і каналізації приватного будинку та умови розробки.

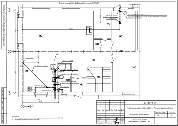
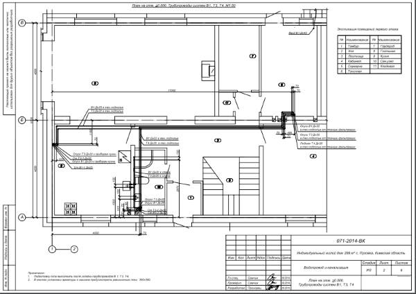
На цьому аркуші указивются місця розташування сантехнічних приладів і місця прокладки трас.
На цьому аркуші розташована схема розташування каналізаційних приладів
Розташування сантех приладів по санвузлів і висновок стояка на покрівлю.

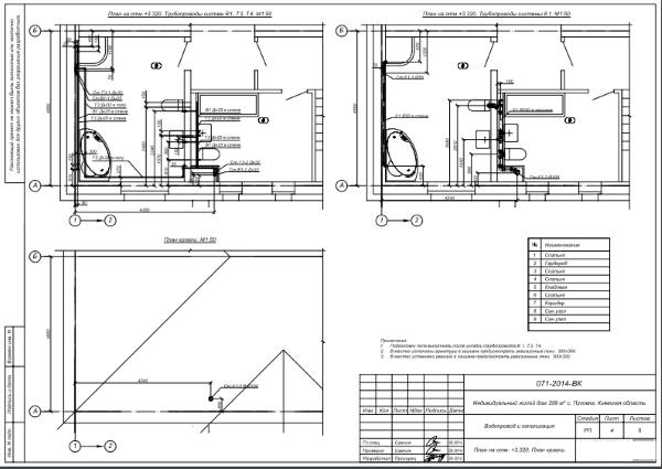
Підключення гарячої та холодної води, аксонометричних креслення

Аксонометричні креслення каналізації

На цьому аркуші показана специфікація для водопостачання

Специфікація матеріалів для каналізації
Маючи специфікацію ви можете детально порахувати вартість системи водопостачання і каналізації
Приклад проекту приватного будинку показівает вам що маючи такий проект монтаж системи можна виконати своїми руками.
Після розробки проекту ви можете звернутися до сантехнікам і порахувати вартість своєї системи опалення буквально до цвяха.
Про те як ми розробляємо систему опалення читайте -->> ТУТ:
Про проектування системи вентиляції дивись -->> ТУТ
Про проектування котельні дивись -->> ТУТ
Про проектування систем автоматизації обладнання котельні дивись -->> ТУТ
Проект розробляється на основі архітектурного проекту з урахуванням побажань замовника (наявність теплих підлог, тип котла, радіатори).
Вартість проектування інженерних систем будинку дивись -->> ТУТ
Чому вам вигідно звертатися до нас?

Залиште Ваш комментар