Приклад проекту теплої підлоги
Розрахунок теплої підлоги - приклад

Титульний лист проекту теплих підлог

На цьому листі зазначаються загальні вхідні дані дані проекту систем теплих підлог приватного будинку і умови розробки. Зазвичай система опалення проектується на мінімальну температуру +21 всередині при -21 зовні приміщень.

На цьому аркуші указивются місця розташування контурів теплої підлоги і шляхи проходження магістралей заміського будинку.
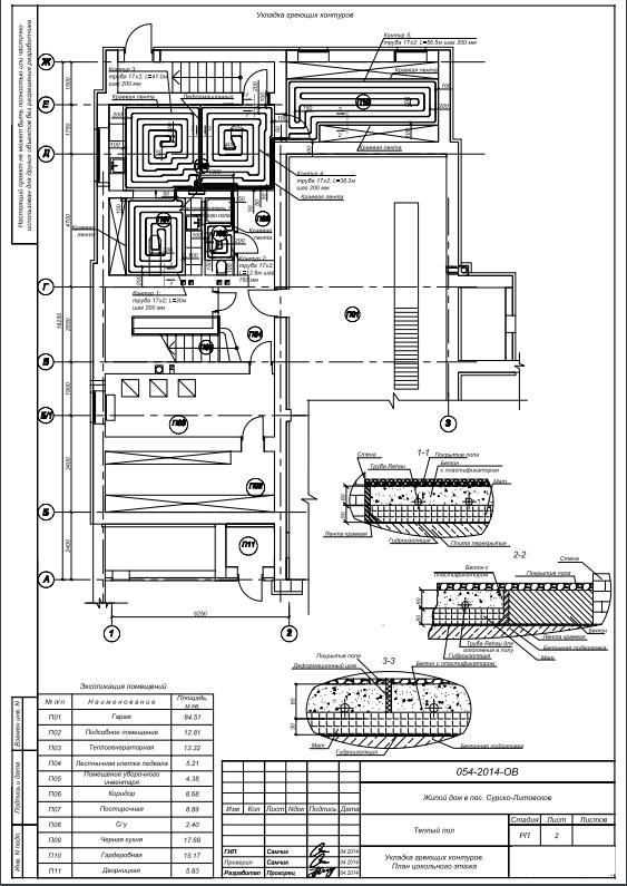
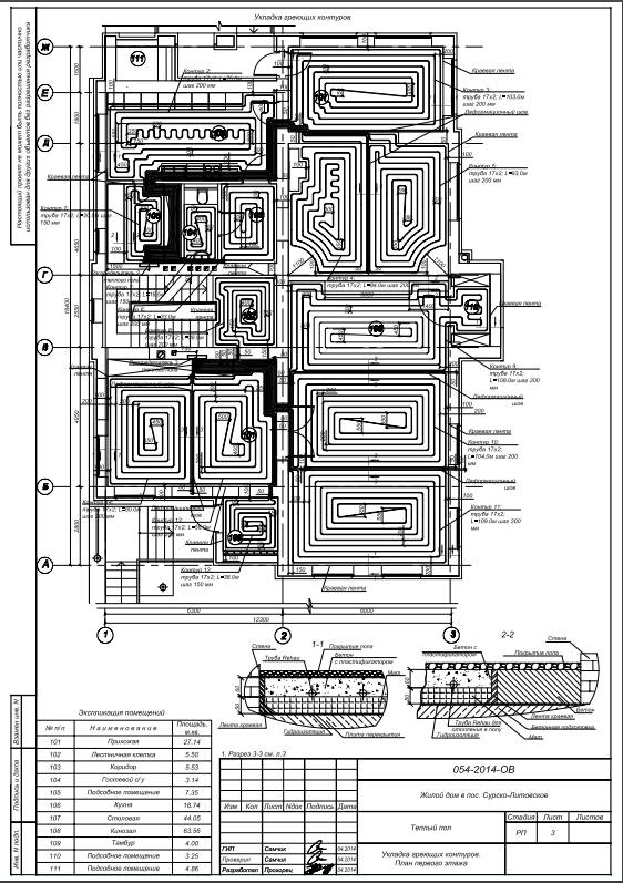
На цьому аркуші розташована схема теплих підлог першого поверху і їх потужність по контурах.

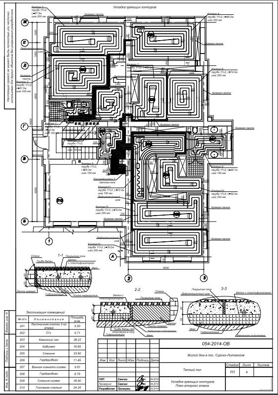
Розташування теплих підлог на 2-му поверсі і їх потужність.

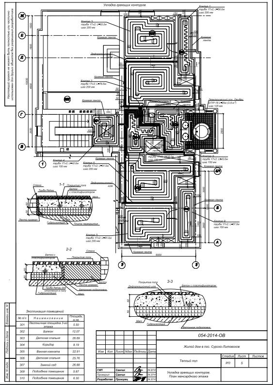
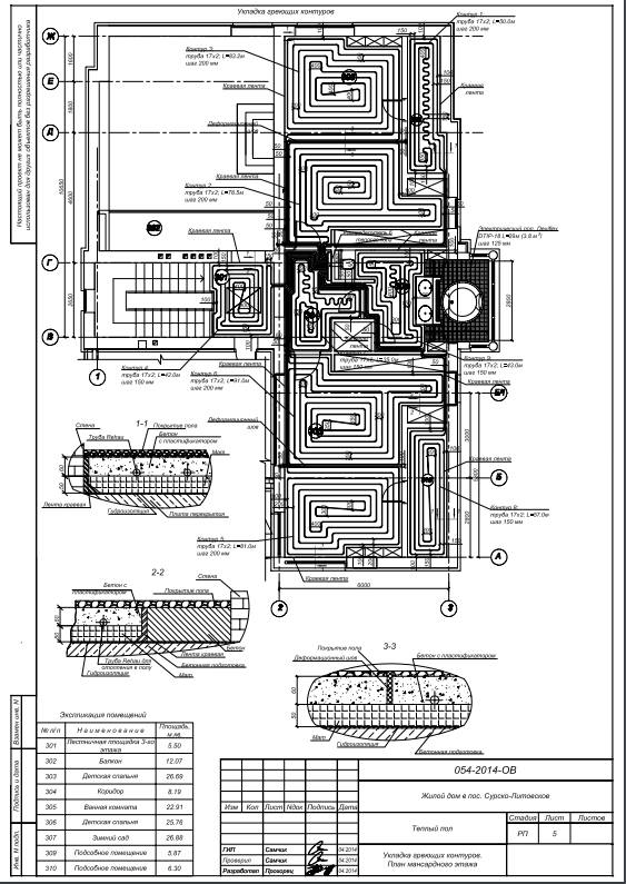
Укладання контурів в мансардному поверсі. На плані теплих підлог також вказана довжина контурів
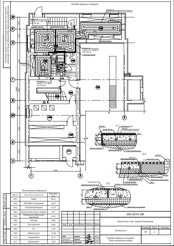
На цьому аркуші показані місця укладання утеплювача під систему теплих підлог цокольного поверху

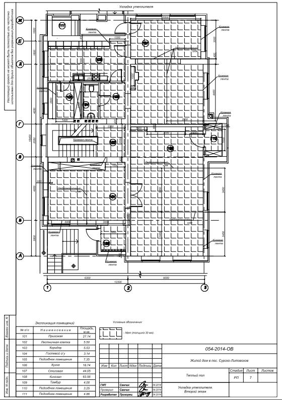
На цьому аркуші показана схема розкладки утеплення на першому поверсі

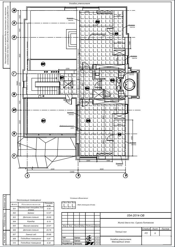
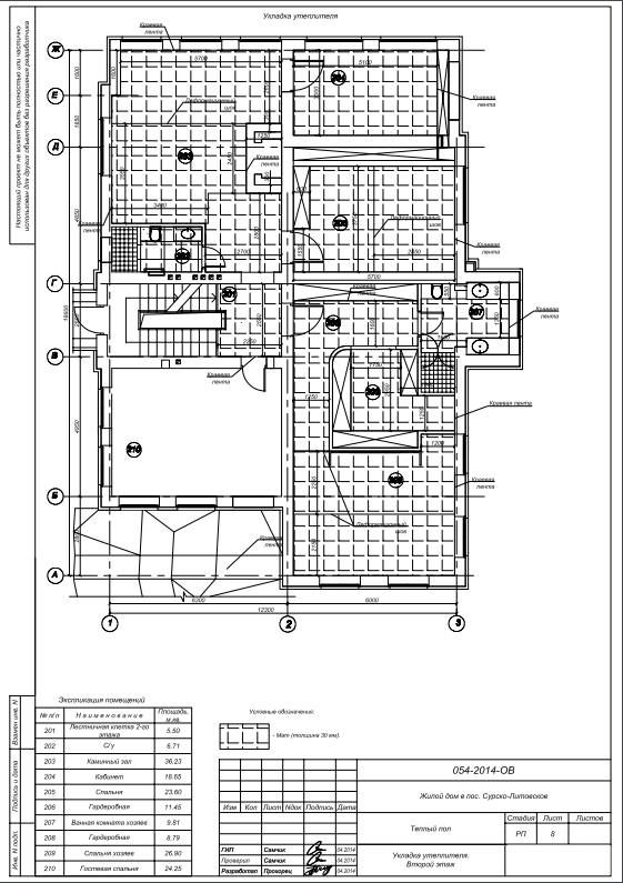
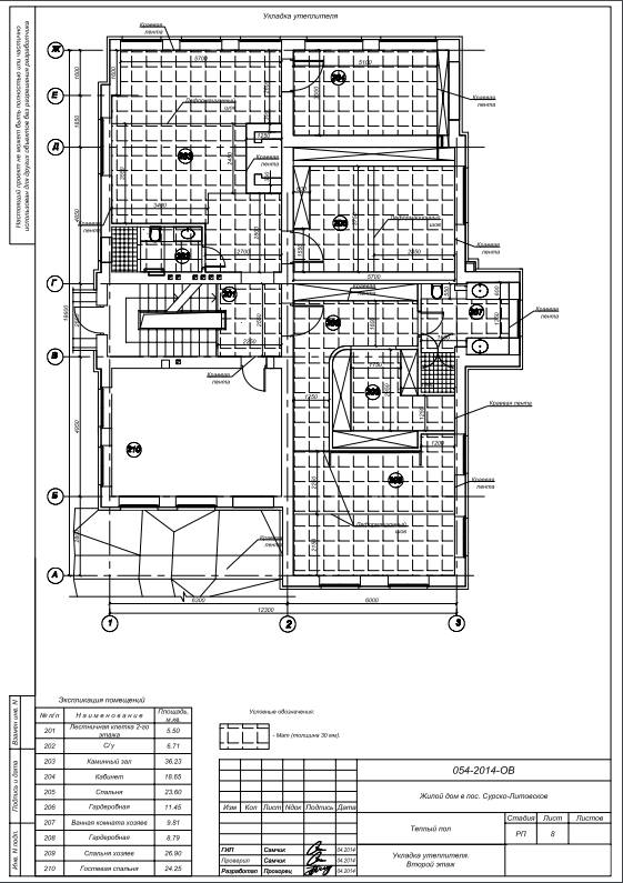
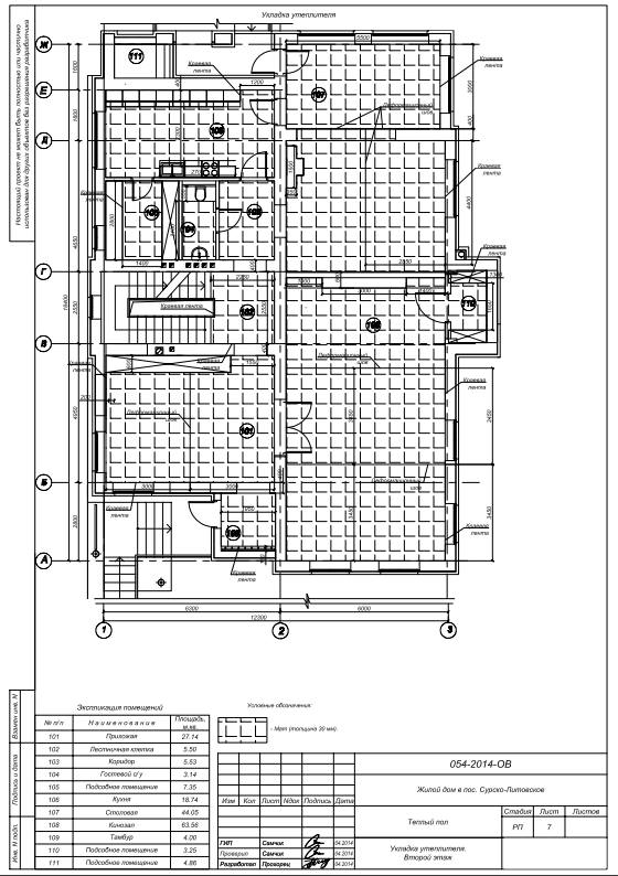
На цьому аркуші показані місця укладання утеплювача другого поверху

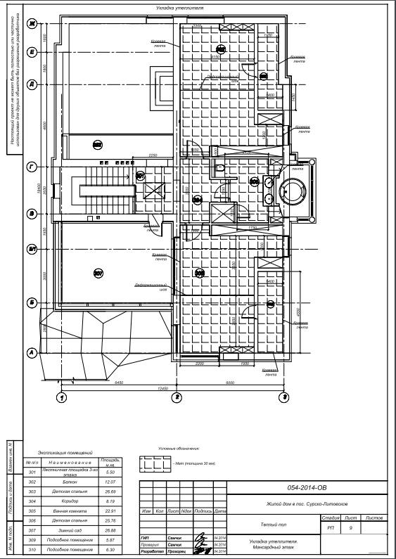
Укладання утеплення на мансардному поверсі
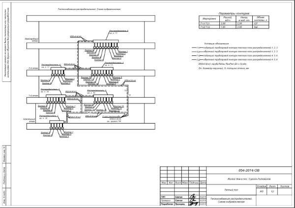
Контури підключення до розподільникам

На цих аркушах показані розташування ключові місця підключення контурів до гребінки

Розташування гребінок на поверхах

Перелік матеріалів для організації системи теплих підлог

Приклад проекту системи теплих підлог показує вам що маючи такий проект монтаж системи можна виконати своїми руками.
Після розробки проекту ви можете звернутися до сантехнікам і порахувати вартість своєї системи опалення буквально до цвяха.
Після розробки проекту ви можете звернутися до сантехнікам і порахувати вартість своєї системи опалення буквально до цвяха.
Про те як ми розробляємо систему опалення читайте -->> ТУТ:
Про проектування системи вентиляції дивись -->> ТУТ
Про проектування системи водопроводу і каналізації дивись -->> ТУТ
Про проектування котельні дивись -->> ТУТ
Про проектування систем автоматизації обладнання котельні дивись -->> ТУТ
Проект розробляється на основі архітектурного проекту з урахуванням побажань замовника (наявність теплих підлог, тип котла, радіатори).
Вартість проектування інженерних систем будинку дивись -->> ТУТ
Чому вам вигідно звертатися до нас?

Залиште Ваш комментар