Приклад проекту приточно - витяжної вентиляції
Припливно витяжна вентиляція приклад проекту



На цьому аркуші - перелік креслень проекту.

Загальні дані та розрахункові характеристики

Опис основних технічних рішень вентиляційної системи

Загальні вказівки до системи вентиляції
На цьому аркуші зібрана вся інформація по обладнанню для комплектації системи вентиляції
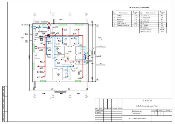
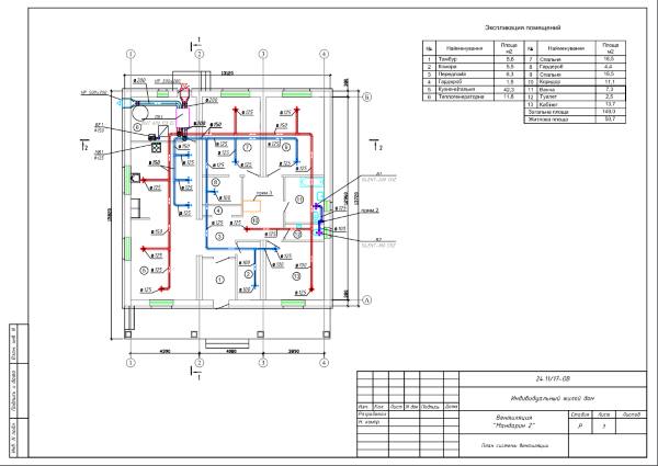
План розводки воздуховодов

Розріз по вентиляційних каналах з відмітками

Розташування та підключення повітропроводів до рекуператору.
аксонометрична схема повітроводів із зазначенням діаметрів.



Після розробки проекту ви можете порахувати вартість своєї системи опалення буквально до цвяха.
Про те як ми розробляємо систему опалення читайте -->> ТУТ:
Про проектування системи водопроводу і каналізації дивись -->> ТУТ
Про проектування котельні дивись -->> ТУТ
Про проектування систем автоматизації обладнання котельні дивись -->> ТУТ
Проект розробляється на основі архітектурного проекту з урахуванням побажань замовника (наявність теплих підлог, тип котла, радіатори).
Вартість проектування інженерних систем будинку дивись -->> ТУТ
Чому вам вигідно звертатися до нас?

Залиште Ваш комментар