Приклад проекту опалення
Проект опалення приклад

На цьому листі зазначаються загальні вхідні дані дані проекту систем опалення приватного будинку і умови розробки. Зазвичай система опалення проектується на мінімальну температуру +21 всередині при -21 зовні приміщень.

На цьому аркуші указивются місця розташування радіаторів опалення та шляхи проходження магістралей заміського будинку.

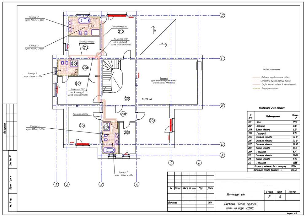
На цьому аркуші розташована схема розташування теплих підлог і їх потужність по контурах.
Розташування радіаторів на 2-му поверсі, їх тип і потужність.
На плані теплих підлог також вказана довжина контурів

На цьому аркуші показана принципова схема котельні

На цьому аркуші показана схема підключення контурів теплої підлоги

На цьому аркуші зібрана вся інформація по обладнанню для комплектації системи опалення
Маючи специфікацію ви можете детально порахувати вартість системи опалення
Приклад проекту приватного будинку показівает вам що маючи такий проект монтаж системи можна виконати своїми руками.
Після розробки проекту ви можете звернутися до сантехнікам і порахувати вартість своєї системи опалення буквально до цвяха.
Про те як ми розробляємо систему опалення читайте -->> ТУТ:
Про проектування системи вентиляції дивись -->> ТУТ
Про проектування системи водопроводу і каналізації дивись -->> ТУТ
Про проектування котельні дивись -->> ТУТ
Про проектування систем автоматизації обладнання котельні дивись -->> ТУТ
Проект розробляється на основі архітектурного проекту з урахуванням побажань замовника (наявність теплих підлог, тип котла, радіатори).
Вартість проектування інженерних систем будинку дивись -->> ТУТ
Чому вам вигідно звертатися до нас?

Залиште Ваш комментар