Приклад проекту теплогенераторної
Проект котельні котеджу приклад


На цьому аркуші вказується опис системи та вихідні дані для проекту.
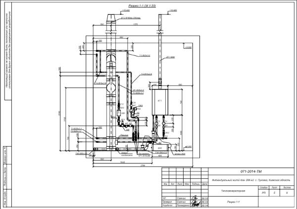
На цьому аркуші розташована схема елементів теплового пункту.

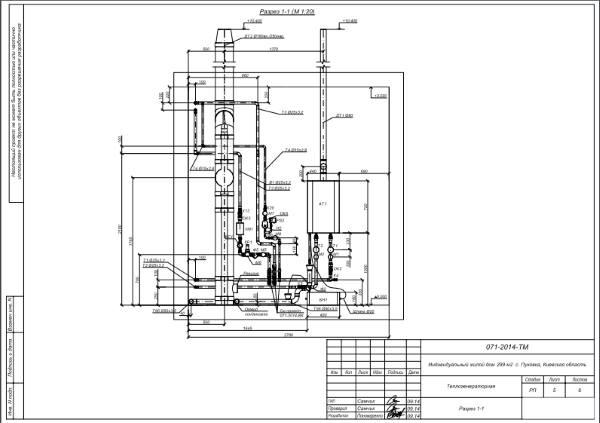
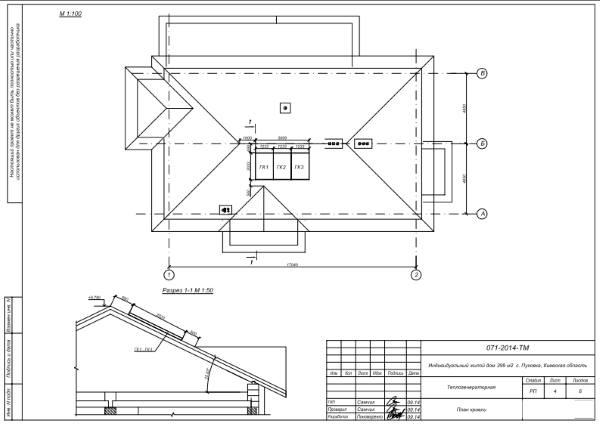
Розташування приладів в приміщенні котельні.

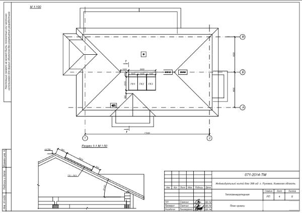
Кути нахилу і розташування геліосистеми на покрівлі

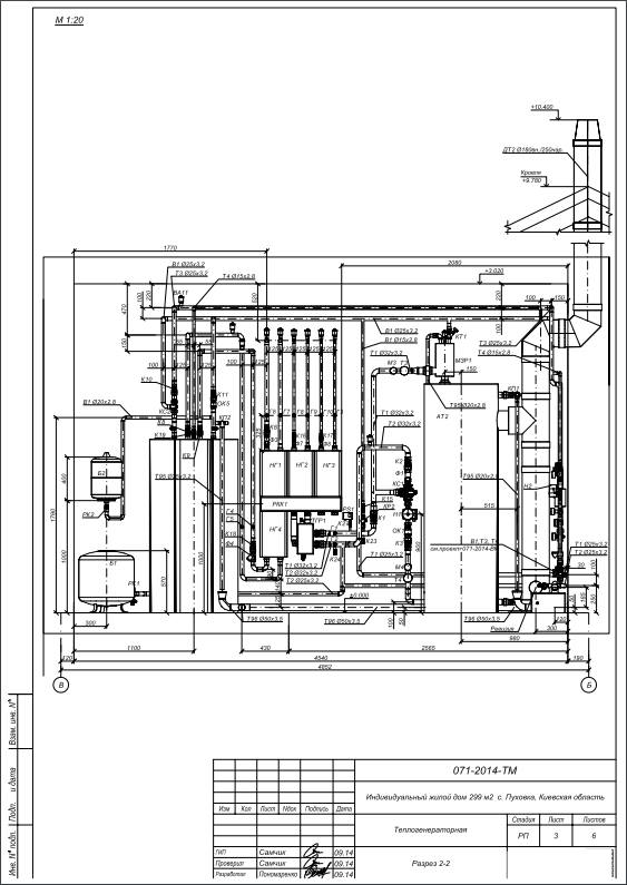
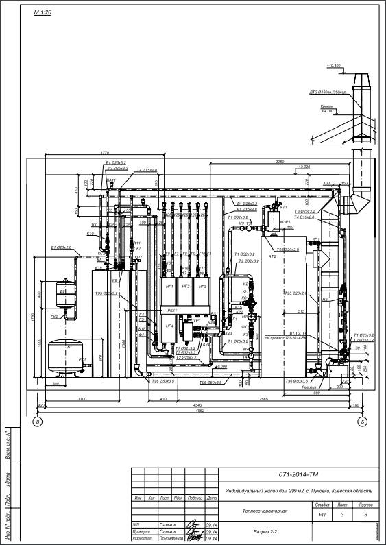
На цьому аркуші показаний розріз і вертикальне розташування обладнання


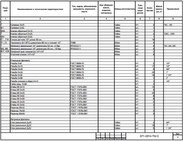
На цьому аркуші зібрана вся інформація по обладнанню для комплектації системи
Маючи специфікацію ви можете детально порахувати вартість системи



Після розробки проекту ви можете звернутися до сантехників і порахувати вартість монтажу системи котлової.
Про те як ми розробляємо систему опалення читайте -->> ТУТ:
Про проектування системи вентиляції дивись -->> ТУТ
Про проектування системи водопроводу і каналізації дивись -->> ТУТ
Про проектування систем автоматизації обладнання котельні дивись -->> ТУТ
Проект розробляється на основі архітектурного проекту з урахуванням побажань замовника (наявність теплих підлог, тип котла, радіатори).
Вартість проектування інженерних систем будинку дивись -->> ТУТ
Чому вам вигідно звертатися до нас?

Залиште Ваш комментар