Приклад проекту автоматизації теплопункту
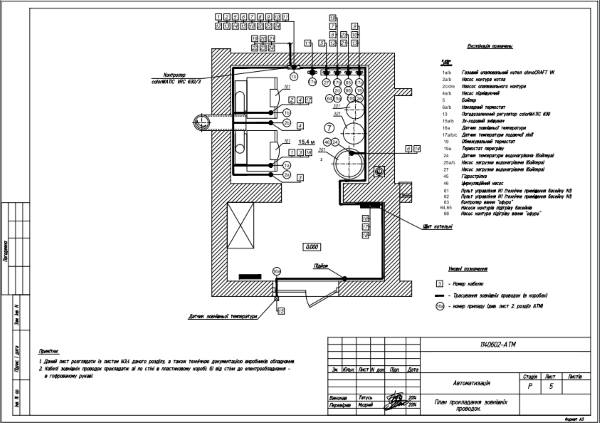
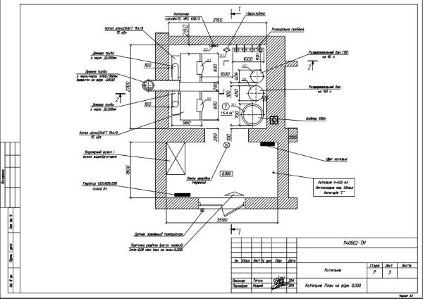
Проект автоматизації котлової
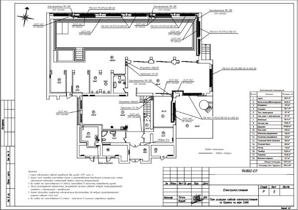
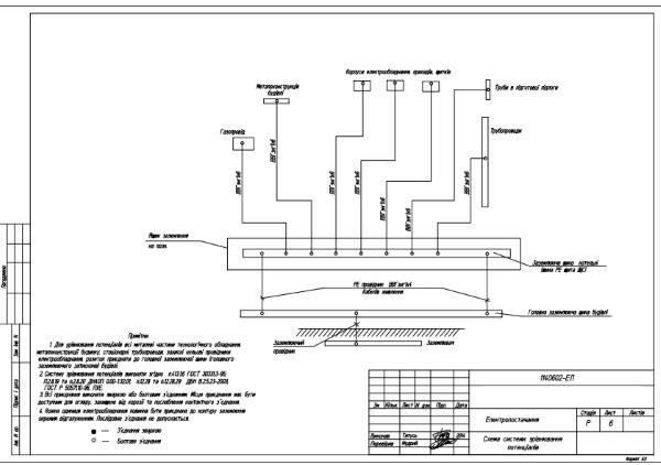
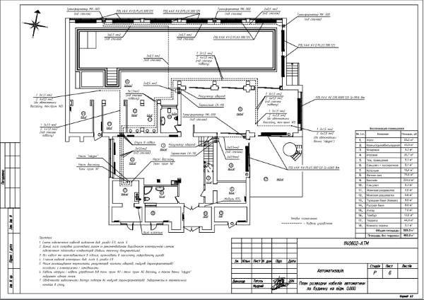
РОЗДІЛИ АТМ, ТМ, ЕЛ


На цьому аркуші вказується склад комплекту проекту.

На цьому аркуші детальний перелік розділів проекту.








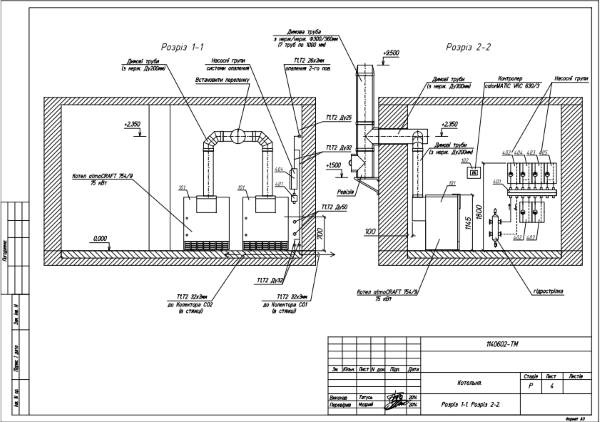
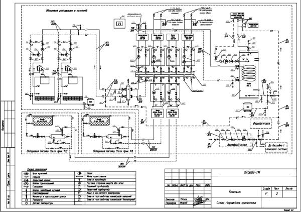
Принципова гідравлічна схема




















Після розробки проекту ви можете точно порахувати вартість своєї системи котельні.
Про те як ми розробляємо систему опалення читайте -->> ТУТ:
Про проектування системи вентиляції дивись -->> ТУТ
Про проектування системи водопроводу і каналізації дивись -->> ТУТ
Про проектування котельні дивись -->> ТУТ
Проект розробляється на основі архітектурного проекту з урахуванням побажань замовника (наявність теплих підлог, тип котла, радіатори).
Вартість проектування інженерних систем будинку дивись -->> ТУТ
Бірюкович Павло
Експерт з інженерних систем і енергоефективності
Чому вам вигідно звертатися до нас?
Продаємо готові проекти котеджів власного виробництва
Виконуємо індивідуальне проектування
Виконуємо проектування реконструкції будинків
Проектуємо будинки на існуючих фундаментах
Виконуємо дизайн проекти інтер'єрів
Коригуємо імпортні проекти з урахуванням вітчизняних матеріалів
Консультуємо з питань будівництва та ремонту

Залиште Ваш комментар