Розрахунок енергоспоживання будинку 299 м2
Енергоаудит будинку на стадії проекту
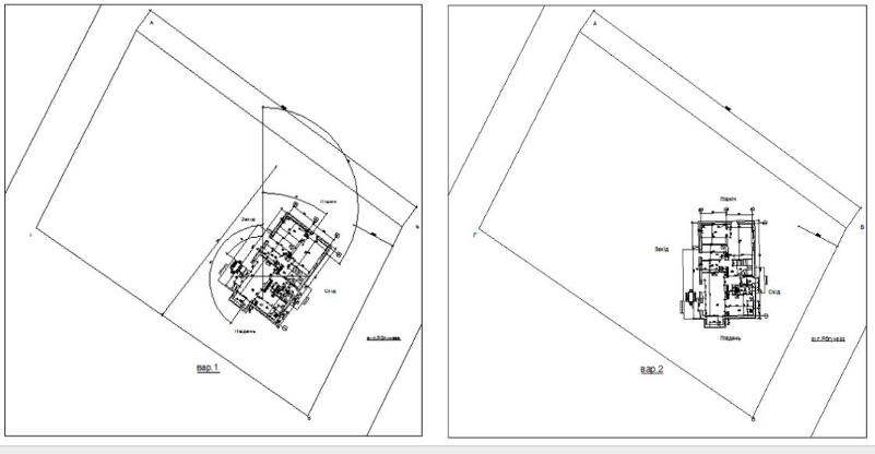
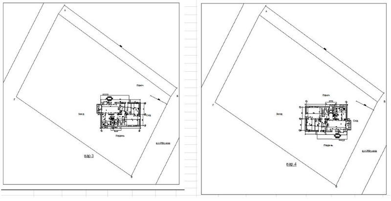
Перевірка енергетичної ефективності різних стін, визначення розташування на ділянці.
Аналітичний розрахунок житлового будинку 299 м2 за програмою планування пасивних будинків (PHPP 2012)
Мета розрахунку:
- Підбір оптимальних співвідношень елементів зовнішньої оболонки(стіни, перекриття 2го поверху, поли 1го поверху)
- Визначення оптимального, з точки зору енергосбрежения, розміщення на ділянці.
- Розрахунок енергоспоживання на опалювання, гаряче водопостачання (ГВС), електропостачання.
- Перевірка можливості і раціональності використання сонячних систем ГВС і електропостачання.
- Підбір оптимального енергоносія і системи для опалювання і ГВС.
- Підсумкова перевірка згідно підібраних параметрів і видача звіту з програми PHPP (2012)
Початкові дані базового расчета:
- Будинок двоповерховий з плямою забудови 196 м2 і загальною площею 299м2
- К-ть постійних жителів - 5 чел
- Розміщення будинку - південний схід з відхиленням південного фасаду від осі північ-південь на 217 град.
- Стіни - газобетон з утепленням 100 мм митнеральной вати, повітряним прошарком і облицюванням кирпичем.
- Фундаменти - монолітна фундаментна плита з утепленням 200 мм пенополістерола
- Вікна PVC - Veka Topline, склопакет 4i-18-4-18-4i(Ar) c теплою рамкою
- Перекриття 2го поверху - залізобетонна панель з утепленням 350 мм мінеральною ватою.
- Система вентиляції - примусова з системою рекуперації тепла
- У розрахунку використана вентиляційна установка Вентс з ККД 82% і невеликим грунтовим теплообмінником.
- Системи опалювання - газовий котел із застосуванням в якості резервного джерела котла на твердому паливі (можливе застосування каміна)
- Система гарячого водопостачання з використання гелиосистемы (покриває 49- 50% енерговитрат на ГВС)
- Можливе розміщення фотоелектричних модулів на покрівлі.
Етап 1. Визначення енергоспоживання згідно базових даних.

Співвідношення тепловтрат і теплопоступлений у базовому варіанті.

Етап 2. Перевірка і підбір різних пирогів стін (вплив на енергоспоживання)


Етап 3. Визначення оптимального розташування на ділянці згідно сонячного тепло вступу.




Етап 4. Проміжний результат. (Обговорення із замовником і архітектором ухвалення остаточного рішення)
Рекомендації фахівця з енергозбререження:
Згідно розрахунків раціонально мати в розпорядженні будинок входом строго на північ, в конструктивних рішеннях доцільно відмовитися від облицювання кирпичем і використати в якості зовнішніх стін газобетонний блок Aeroc завтовшки 500 мм з утепленням мінеральною ватою 200 мм, утеплення підлоги 1го поверху - 300 мм, перекриття 2го поверху - 450мм.
Після обговорення із замовником і архітектором прийнято:
- У зв'язку із складними геологічними умовами відмовитися від грунтового теплообмінника.
- В связи с малым влиянием на годовое энергопотребление пренебречь влиянием расположения дома согласно сторон света (располагаем под самым удобным углом)
- Для зменшення витрат на будівництво приймаємо найзручнішим варіант із стінами: Газобетон - 350мм + утеплення 200 мм з облицюванням плиткою.
Етап 5. Остаточний розрахунок з підбором утеплення і інженерних систем.

Етап 6. Порівняння річних витрат на опалювання і ГВС різними видами палива

Етап 7. Висновки:

Як найбільш раціональний приймається Варіант №8
Газобетонний блок 375 мм + утеплення 200 мм + облицювання плиткою, перекриття 2го поверху утепляється 350 мм мінеральною ватою, підлога 1го поверху - 200 мм пенополистерола.
Вентиляція примусова з рекуперацією тепла без грунтового теплообмінника, вікна енергоекономічні з трикамерним склопакетом(Veka Topline, склопакет 4i-18-4-18-4i(Ar) c теплою рамкою).
Система опалювання з газовим і твердопаливним котлом, гаряче водопостачання із застосуванням гелиоколлектора.
P.S. Порівняння витрат на опалювання вибраного варіанту з традиційним і пасивним будинком
Опалювання газове. Традиційний будинок: стіни - цеглина 380 + утеплення 50мм, підлога 1го этажа- 100 мм утеплення, утеплення перекриття 2го поверху - 200 мм утеплення, система вентиляції - природна, вікна звичайні з трикамерним склопакетом.

Спасибі за увагу і вдалого будівництва.
Примітка: В Європі (Австрія) ціна на 15.07.2014 на електропостачання(у перерахунку на грн) - 4 грн/кВт, вартість 1м3 газу - 12 грн.
Ще про пасивні будинки читай ТУТ
Про те як зменшити тепловтрати типового будинку в 8,5 раз читай - >>> ТУТ
Чому вам вигідно звертатися до нас?

Залиште Ваш комментар