Оцінка будинку по критеріям Active House
Проектуємо і будуємо активний будинок нульової енергії за критеріями Active House

Після розділу ділянки у одного з господарів стало питання реконструкції незручної, вузької прибудови в двох або навіть трьох сімейний будинок.
А якщо робити повну реконструкцію то є можливість зробити будинок максимально енергоефективним.
В процесі реконострукціі ми розібралися в критеріях Active House і по можливості постаралися впровадити їх в проект.
Що хорошого в стандарті Активного Будинки?
- Оцінка проекту і майбутнього будинку по критеріям які впливають на здоров'я жителів
- освітленість житлових приміщень природним світлом
- комфортна температура
- забезпечення якісним (очищеним) свіжим повітрям
2. Оцінка будинку за енергетичними показниками
- споживання енергії
- виробництво енергії з відновлюваних джерел
- споживання первинної енергії
3. Оцінка екологічності будівлі
- екологічність будівельних матеріалів
- використання прісної води
- використання матеріалів вторинної переробки
Як виглядає процес оцінки активного будинку?

Оцінка критеріїв Active House відбувається за чотирибальною шкалою де, де 1 - найвищий рівень відповідності критеріям, 4 - мінімальний.

Зона 1. Верхня частина радара активного будинку відповідає за комфорт

а) природна освітленість,
б) температура,
в) якість повітря.

Зона 2. Права частина радара відповідає за енергію.

а.) Споживання енергії всіма системами.
б.) Генерація енергії.
в.) Підсумкове споживання первинної енергії від зовнішніх мереж

Зона 3. Ліва частина відповідає за вплив на екологію

а) Екологічність будівельних матеріалів (включаючи вуглецевий слід від виробництва і доставки матеріалів на ділянку).
б) Використання прісної води (збір дощової води)
в) Використання при будівництві екологічної деревини, переробляються і матеріалів мають екологічні сертифікати

В результаті формується радар активного будинку по якому можна визначити на скільки збалансованим є будівля і що варто поліпшити в процесі проектування.

Як оцінити активний будинок при проектуванні та реконструкції на практиці:
Опис проекту:
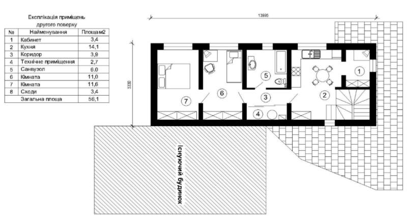
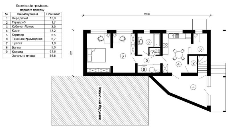
За рішенням суду двоквартирний будинок підлягає розподілу на три частини, кожна з яких має площу близько 47,4 м2
Вихідні дані: Старий будинок був побудований в 1947 р Фундаменти - стовпчасті цегляні, cтен - глинобитні, обкладені зовні цеглою, Перекриття -дерев'яні, Покрівля-шифер. Під частиною будинку є підвал.
Будинок складається з двох квартир.
Проектуємо Двоквартирний будинок 121 м2 з цоколем з прибудови
Базовий проект розроблений в 2013 р

Завдання: Спроектувати і побудувати доступний енергоефективний будинок для двох сімей.
На ділянці 3 сотки неправильної форми. Будівництво планується виконувати своїми силами без залучення важкої техніки.
Обмеження. Ділянка неправильної форми. Площа ділянки на якому розташована реконструюються частина будинку 3,2 сотки.
Від кута будинку до межі ділянки менше 3м.

Проект: Було прийняте рішення збільшити будинок на 0,5 м в ширину і 1,5 м в довжину. В цьому випадку прохід між будинком і парканом буде 1,5м.
Стіна частини будинку що реконструюється межує зі старим будинком орієнтована на північ.
Вікна в ній не передбачені. Всі вікна орієнтовані на південь.
У зв'язку з тим, що ділянка не рівний під будинком запроектований житловий цокольний поверх.
Загальна площа будинку після реконструкції складе 121 м2 + 52 м2 цокольний поверх.
Конструкції: Стовпчасті фундаменти будуть посилені і перетворені в стрічкові фундаменти з монолітного залізобетону. Перекриття - дерев'яні, Стіни - дерев'яний каркас із заповненням мінватою.

Фасади будинку які спочатку планувалися після реконструкції



Після оцінки рішень енергоефективності внесені деякі зміни:




Проводимо оцінку по критеріями Активного будинку
1.Комфорт


При реконструкції використані вікна зі старого будинку тому бажана освітленість кімнат не досягнута.
1.1 Daylight factor (Коефіцієнт природної освітленості (КПО)) загальний бал - 2.8
Для обігріву і охлажднія будинку планується використання теплового насоса.
Максимальна (проектована) річна робоча температура без кондиціонування - 28 гард Цельсія
Максимальна (проектована) річна робоча температура з кондиціонуванням - 25 гард Цельсія
Мінімальна температура взимку - 21,1 град Цельсія.
1.2 Теплова среда, загальний бал - 1
Середня якість повітря над зовнішнім (по датчику СО2 в ppm) - 850
1.3 Якість повітря, загальний бал - 1
Енергоефективність будівлі оцінюється згідно розрахункових методик пассівнгого будинку для реконструкції
2. Енергія
2.1. Енергоспоживання
Для максимальної точності розрахунків тепловтрат будинку застосовуємо інструмент моделювання енерговитрат будівлі по пакету планування пасивних будинків PHPP.
Розраховуємо споживання енергії на опалення:

Споживання енергії на охолодження

Розрахунок витрати енергії на гаряче водопостачання

Розрахунок споживання енергії на побутові потреби

Оцінка відповідності будинку критеріям пасивного будинку

Зведена таблиця витрати енергії будинку з урахуванням ККД обладнання (або COP теплових насосів):

Загальне енергоспоживання будівлі на всі потреби - 60 кВт * год / м2 рік
2.1. Споживання енергії, бали - 2.5
Генерація енергії від поновлюваних джерел енергії



2.3. Значення первинної енергії - 242, бали - 1
3. Екологія
3.1. Навантаження на навколишнє середовище

Підсумковий бал - 1.92
3.2. Споживання води.

Загальний бал - 2
3.3. Стійкість будівництва та застосування матеріалів, що переробляються

Підсумковий бал - 3.7
Фінальний результат:


Також при проектуванні Active House проводиться оцінка не цифрових критеріїв.
Замовник і архітектор повинен відповісти на наступні питання і заповнити чек-лист:













Ще про активний будинок нульової енергії за критеріями Active House дивись тут
Все про розрахунок втрат тепла, енергоефективність будинків і будинок енергія плюс читай тут
Чому вам вигідно звертатися до нас?

Залиште Ваш комментар