Дизайн інтер'єру в комплексі '' Покровський посад'' варіант 2
Сучасний дизайн інтер'єру квартири
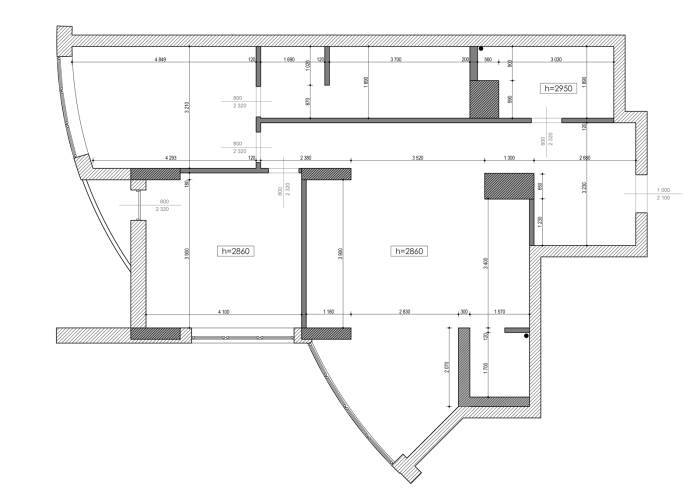
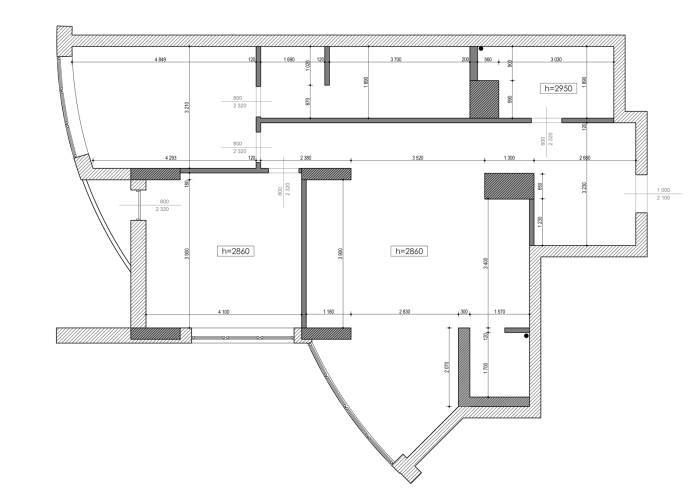
Сказати, що у багатоквартирних будинках непродумані планування - нічого не сказати. Але з даною квартирою нам пощастило. При переплануванні "рухалися" тільки перегородки, всі важливі комунікаційні вузли залишилися на своїх місцях, що істотно скоротило бюджет майбутнього ремонту.


Перетікання простору з передпокою в кухню-вітальню вирішено максимально нейтрально. Тут розміщується велика шафа з глянсового МДФ з системою відкривання дверей TIP-ON (що дозволило відмовитися від ручок), який ''маскується'' під спільне рішення передпокою.

У цій квартирі найбільш правильним рішенням було ''витягнути'' кухню до вітальні. На місці кухні організувалася простора комора, що дозволило звільнити кухню від непотрібних деталей. У підсумку, вона стала доповненням вітальні з каміном, де вечорами збирається вся родина.



Спальня вирішена дуже контрастно, незважаючи на стіни спокійних відтінків. Яскраве ліжко на тлі глибокої темно-синьої стіни стала основним її акцентом.
Декоративна венеціанська штукатурка виглядає дуже несподівано в сучасному інтер'єрі і підкреслює статус її господарів. Навісні полиці також можуть виконувати функцію місця для роботи за ноутбуком, а в "неробочий" час стають відмінним декоративно-функціональним елементом.


Дитяча кімната залишилася шануючи аскетичною. Вона виглядає яскравою тільки за рахунок функціонально-необхідних нестандартних рішень і її наповнення. У дитячій як ніде необхідно багато місця для зберігання речей, в даному випадку це навісні антресолі і полиці. Доступ до них можливий завдяки сходах на рейках. Також місця для зберігання передбачені в подіумі, який проходить уздовж 3-х стін.


Санузлы в квартире решены абсолютно по-разному: гостевой - яркий за счет желтой мозаики в комбинации с черной плиткой и деревянной скамьей в душевой; хозяйский - спокойный и умиротворяющий, в нем можно провести вечность, благодаря его монохромности и нейтральности.




Ще про дизайн проекти читай ТУТ
Чому вам вигідно звертатися до нас?

Залиште Ваш комментар