Дизайн проект
Дизайн-проект - це професійна, творча взаємодія архітектора і замовника по створенню функціонального і гармонійного простору будинку, котеджу, а також кожного приміщення окремо.
Дизайн-проект включає в себе:
- Розробка первинних ідей по створенню дизайну інтер'єру.
- Обмірний план приміщення.
- Варіанти планувальних рішень (2-3 варіанти).
- Стильові і колірні рішення (2-3 варіанти).
- План розміщення меблів (2-3 варіанти).
- План підлог, розкладка матеріалів.
- План стель.
- Схема освітлення, розподіл ліній по вмикач.
- План розміщення розеток.
- План прив'язки сантехнічного обладнання.
- Розрізи по стелях кожного приміщення.
- Схема теплої підлоги.
- Схема дверних прорізів.
- Розгортки приміщень.
- План розміщення сантехнічного устаткування.
- Візуалізація інтер'єру в програмі.
Розробка первісних ідей по створенню дизайну інтер'єру.


На даному аркуші розробляються первинні ідеї та стиль будующего інтер'єру. Показуються на різних прикладах і замальовках головні цікаві задумки.

План після обміру.
На даному аркуші аркуші розробляється існуючий план з розмірами, отриманими після обмірів приміщень.

Варіанти планувальних рішень.
На даному аркуші розміщені варіанти планувальних рішень, пошук необхідного правильно організованого і гармонійного простору.

Варінти кольорових рішень.
Тут розміщені варіанти колірних і світлових рішень, пошук текстур і фактур з урахуванням використовуваних матеріалів.

План демонтажу.
На даному аркуші показані перегородки, які демонтують.

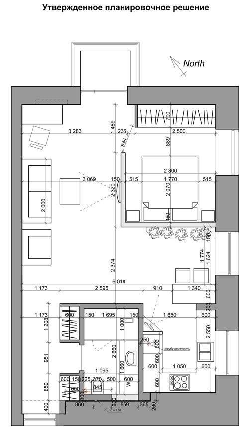
Затверджене планувальне рішення.
На даному аркуші розміщений затверджений замовником план з розмірами, розміщенням зон, меблів і її габаритами.

План полів.
На даному аркуші розроблений план підлоги з зазначенням площі та матеріалу, розкладка плитки для підлоги.

План і розріз стель.
Тут розроблені план стель із зазначенням опускаючи і приміток, розрізи і складні вузли, передбачені проектом.

План розеток і слабкострумовх мереж з прив'язками.
На даному аркуші розроблений план розеток з прив'язками, точки підключення телефону, інтернету, тв, кондиціонера, сигналізації і т.д. Також детально розроблена схема всіх розеток і підключень кухні та санітарного вузла.
План освітлення з прив'язкою вимикачів.
На даній аркуші розроблений план освітлення із зазначенням всіх освітлювальних приладів (стельові, настінні, підлогові, світлодіодні, з автономним вимиканням), їх прив'язки і висоти, а також схема вимикачів. Затверджені замовником схеми виключення і зв'язку освітлення і вимикачів.


Розгортка стін.
На даних аркушах розміщені розгортки всіх стін по приміщеннях із зазначенням їх площі і матеріалів, розкладка плитки і підрахунок необхідного її кількості для закупівлі.

Схема теплої підлоги.
На даному аркуші розміщений план-схема теплої підлоги, із зазначенням площі та регулятора, його прив'язка і висота.

Візуальный матеріал.

Ще про дизайн проекти читай ТУТ
Чому вам вигідно звертатися до нас?

Залиште Ваш комментар