Типовой проект ПРИМЕР ЧЕРТЕЖЕЙ
Из чего состоит проект дома.
Готовый проект дома состоит из:
- Архитектурного раздела.
(Выдаётся в одном экземпляре с "мокрыми" печатями и подписями, к нему прилагается альбом ''Эскизных намерений строительства'' для получения строительного паспорта.)
Состава архитектурного раздела достаточно для получения строительного паспорта который обязательно нужно получить перед началом строительства. После получения строительного паспорта, перед началом строительства, нужно зарегестрировать деклорацию про начало строительства.
Все наши архитектурные проекты домов включают в себя:
- Титульный лист.
- Перечень чертежей.
- Ксерокопию квалификационного сертификата архитектора, который разрабатывал проект, заверенная личной печатью.
- Пояснительную записку, в которой описаны:
- Характеристики дома: общая и жилая площадь, габаритные размеры, строительный объем, площадь застройки.
- Описаны основные конструкции и применяемые материалы.
- Перечень материалов использованных в проекте заверяется подписью главного архитектора и «его личной мокрой» печатью.
- Планы первого и второго этажей.
Если в доме предусмотрен подвал, то и план подвала.
- На планах указаны все необходимые размеры:
- толщины стен и перегородок,
- расстояние до дверей и окон и их размеры,
- размеры комнат.
- На планах указано расположение вентиляционных и дымовых каналов.
Четыре фасада.
- На фасадах указаны высота цоколя и конька кровли, отметки высот дверей и окон.
Два разреза.
- На разрезах показана высота помещений, оконных и дверных проемов, подоконников.
План кровли.
- Конструктивного раздела:
(выдаётся в двух экземплярах)
Входит в стандартный комплект чертежей и содержит перечни и колличество материалов ко всем разделам.
Включает:
Чертежи фундаментов,в котрые входит:
- план монолитной подушки,
- схемы арматурных каркасов предназначенных для армирования монолитной подушки,
- план стен фундаментов, расположенных над монолитной подушкой,
- сечения фундаментов, на которых показана глубина заложения фундаментов,
- спецификации применяемых материалов
Планы перекрытий (всех этажей), на которых отмечены:
- раскладка панелей перекрытия (или деревянных балок) ,
- показаны монолитные участки и необходимые узлы и детали.
- Дан перечень и количество элементов перекрытий.
Чертежи сборных железобетонных перемычек и/или монолитных поясов (всех этажей),
которые включают в себя:
• планы, с указанием мест расположения различных перемычек,
• спецификации перемычек с указанием наименования и количества разных перемычек.
- Планы и спецификации монолитных поясов.
Чертежи кровли, которые включают в себя:
•план стропил, с перечнем элементов,
•разрез кровли, на котором указаны размеры основных элементов,
• перечень необходимых материалов.
В наши проекты домов заложены материалы, которые продаются в отечественных магазинах и массово выпускаются предприятиями.
Примечание.1.
В связи с тем, что:
Невозможно предусмотреть вкусы каждого Заказчика, расстановку мебели, (от которой зависит расстановка розеток, выключателей и светильников), выбор конкретных сантехприборов, пожелания к системе отопления. Раздел системы отопления, а также Сантехнический та электрический разделы проекта выполняются по желанию Заказчика, за дополнительную оплату.
Примечание.2.
При наличии данных инженерно-геологических изысканий (нужны три скважины), за отдельную плату, мы можем выполнить индивидуальное проектирование фундаментов.
Используя наши проекты вы легко сможете построить дом своими руками.
Чертеж дома - пример чертежей готового проекта:
Титульный лист готового проекта.
На нем ставится "мокрая" печать, подпись директора компании, данные о том где будет строится дом.

Перечень чертежей

Пояснительная записка. Общие данные: адрес участка, серия № акта на землю, площадь участка(эти данные могут быть вписаны позже самим хозяином), общие данные по дому.

Пояснительная записка. Конструктивные решения, описание: фундаментов, стен, перекрытий, крыши

Пояснительная записка. Инженерная часть. Описание водопровода, канализации.

Пояснительная записка. Электрика. Противопожарные меры. Описание противопожарных мер применяемых в проекте.

Пояснительная записка. Меры по технике безопасности, молниезащита.

Пояснительная записка. Сводная таблица по конструктивной части проекта с подписью главного архитектора и "мокрой" печатью

Генеральный план участка. План участка перенесенный из акта на землю с привязкой дома.
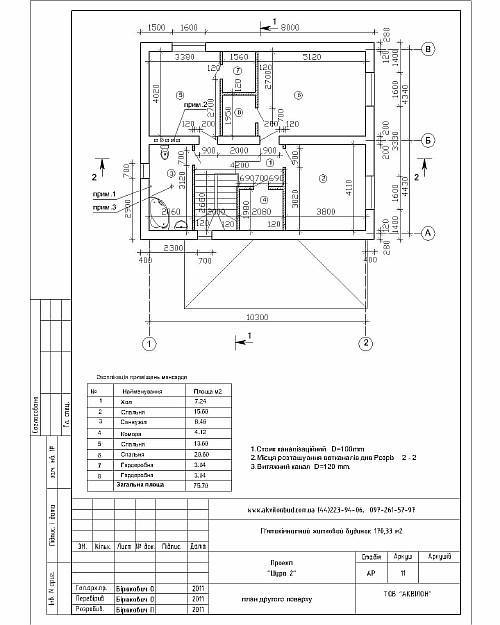
План первого этажа со всеми размерами, площадями комнат и примечаниями

План второго этажа со всеми размерами, площадями комнат и примечаниями

Четыре фасада дома по осям.
На этом листе отображается количество основных стеновых материалов в м3, и фрагмент забора.




Разрез по оси 1-1 На этом листе отображаются высоты внутренних элементов дома, и описывается состав стен, перекрытия, кровли.

Разрез по оси 2-2 на этом листе отображаются высоты внутренних элементов с противоположного предыдущему листу ракурса.

План кровли. На этом листе отображается форма крыши, основные размеры, площади и отметки.

Схема вентиляционных и дымовых каналов. На этом листе отображаются каналы для подключения котла и вентиляции с отметками высот и основными привязками.

- Схема расположения элементов подушки фундамента. На этом листе отображается форма подушки фундамента с основными сечениями и привязками.
(Фундамент по умолчанию рассчитывается под хорошие грунты с несущей способностью >2 кг/см2, но при наличии данных геологической разведки может быть пересчитан, за отдельную плату, под грунты на вашем участке)

Схема расположения элементов стен фундаментов. На этом листе отображаются стены фундаментов с отметками сечений, основными размерами, и характерным разрезом

Схема раскладки фундаментных блоков. На этом листе отражена развертка раскладки блоков ФБС с основными отметками высот, маркировкой и привязкой к осям. (Лист присутствует только в случае сборных фундаментов)

Развертка стен крыльца. На листе отображена схема раскладки блоков под крыльцо (при сборных фундаментах) или план заливки фундамента под крыльцо

Разрезы по фундаментам. Сечения фундаментов в ключевых местах согласно отметок на плане фундаментов

Армирование фундаментов. Схема армирования фундаментов в ключевых местах.

Спецификация материалов по фундаментам. На этом листе находится расчет количества основных материалов на строительство фундамента (бетон, арматура)

План монолитного железобетонного пояса 1го этажа. На этом листе находится план железобетонного монолитного пояса под укладку панелей перекрытия, основных сечений арматуры и спецификация материалов пояса.

Спецификация материалов монолитного пояса

Схема расположения элементов перекрытия первого этажа. На листе отображена раскладка пустотных железобетонных панелей и примечания.

Узлы перекрытия. На листе отображены узлы монолитных участков перекрытия и схема армирования.

Спецификация перекрытия 1го этажа. На листе отображена спецификация материалов для перекрытия 1го этажа и примечания

Перемычки 1го этажа. На листе отображена схема расположения готовых перемычек над оконными, дверными проемами и спецификация.

Монолитный пояс 2го этажа. На листе указывается план монолитного пояса под укладку перекрытия 2го этажа со спецификацией.

Перекрытие 2го этажа. На листе отображена схема укладки балок перекрытия между 2м этажом и чердаком со спецификацией.

Узлы перекрытия 2го этажа. На листе отображены узлы крепления балок перекрытия и основные примечания.

Перемычки 2го этажа. На листе отображена раскладка готовых железобетонных перемычек над окнам и дверями 2го этажа.

Ведомость перемычек. На листе отображена общая ведомость перемычек

Схема расположения элементов кровли. На листе показано расположение стропил и основных элементов кровли

Узлы кровли. На листе показаны основные узлы крепления деталей кровли между собой

Спецификация элементов кровли. На листе собраны все материалы по кровле для заказа на лесопилке.

Схема армирования газобетона. На листе показана схема закладки арматуры в газобетонные блоки.

Листы которые присутствуют на проектах каркасных домов:
Расположение стоек деревянного каркаса первого этажа.

Расположение элементов деревянного перекрытия

Спецификация материалов по деревянному перекрытию для заказа на лесопилке.

Развертка каркаса по каждой стене дома


Спецификация деревянного каркаса для заказа на лесопилке.

Особенности кровли и разрез стены каркасного дома.

В проекте все расчеты материалов даны без запаса и требуют уточнения прорабом перед началом строительства. Или Вами если вы собираетесь строить своими руками.
Получив чертеж дома читайте про строительство дома
Узнать про все наши услуги по строительству и проектированию можно здесь
Почему вам выгодно обращаться к нам?

Оставьте комментарий